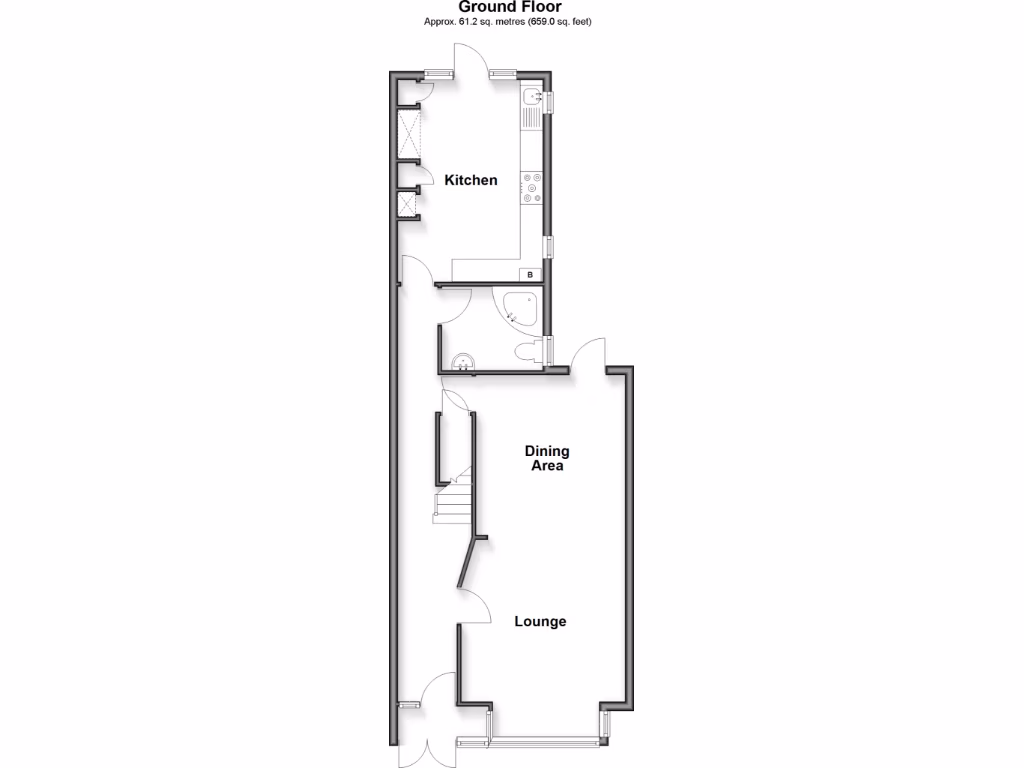
**Standout Features:**
- Spacious 5-bedroom, semi-detached house with a generous 1,271 sq ft of living space.
- Off-street parking and side access to a large, low-maintenance rear garden with an outbuilding.
- Conveniently located within walking distance to Gants Hill underground station and near Valentines Park.
- Bathrooms on every floor cater perfectly to the needs of a growing family.
- Close to excellent local schools with outstanding Ofsted ratings.
This inviting semi-detached home presents an exceptional opportunity for families seeking room to grow in a desirable and tranquil neighborhood. With five well-proportioned bedrooms and three bathrooms, the layout is perfectly designed to enhance everyday living and ensure privacy. The large rear garden not only provides a personal outdoor retreat but also features an outbuilding that can be transformed into a home office or gym, offering flexibility for modern lifestyles.
Located just a short walk from Gants Hill station and the scenic Valentines Park, commuting and leisure are at your doorstep. With average crime rates in a generally affluent area, this home offers both security and comfort. While some maintenance may be required, the property's solid brick construction and double glazing promise a reliable foundation for your family to make lasting memories.
Don’t miss out on this perfect blend of space, location, and potential—ideal for families or savvy investors looking to tap into a vibrant community!
4 bedroom end of terrace house for sale in Cranbrook Road, Ilford, Essex, IG1 — £625,000 • 4 bed • 2 bath • 1400 ft²
5 bedroom end of terrace house for sale in Bloomfield Crescent, Gants Hill, IG2 — £800,000 • 5 bed • 2 bath • 2133 ft²
3 bedroom terraced house for sale in Headley Drive, Ilford, Essex, IG2 — £625,000 • 3 bed • 1 bath • 810 ft²
5 bedroom house for sale in Inglehurst Gardens, Gants Hill, IG4 — £1,200,000 • 5 bed • 3 bath • 2362 ft²
3 bedroom terraced house for sale in Brockham Drive, Gants Hill, IG2 — £550,000 • 3 bed • 1 bath • 1027 ft²
3 bedroom terraced house for sale in Perth Road, Ilford, IG2 — £650,000 • 3 bed • 2 bath • 1463 ft²


























































































