CM22 6QS - 5 bed takeley period cottage in Takeley, CM22 6QS

View on Property Piper

5 bedroom detached house for sale in The Street, Takeley, Bishop's Stortford, Essex, CM22

Summary - 15 The Street, Takeley CM22 6QS

5 bed 3 bath Detached

Recently refurbished family home with garden and parking near Stansted Airport.
Five bedrooms plus master en-suite
A spacious five-bedroom detached cottage on The Street in Takeley, recently refurbished and offered chain-free. Period character survives in the exterior and internal features, while the renovation provides a modern kitchen, updated bathrooms and double glazing. The layout includes a large lounge, separate sitting/dining room, conservatory and a master bedroom with en-suite, suited to family life.

Outside, the property sits on a decent plot with a private rear garden and paved patio for entertaining, plus off-street parking. The village location places shops, pubs and bus links close by, with Stansted Airport and the M11 within easy reach for commuters and frequent travellers.

Practical considerations: the house is a traditional, pre-1900 solid-brick build and no external wall insulation is assumed, which could affect heating efficiency. Council tax is above average for the area and local crime levels are higher than typical, so buyers should factor running costs and security improvements into their plans.

Overall, this home offers immediate move-in readiness after its recent refurbishment, generous family accommodation and strong transport links. It will suit buyers seeking period charm with modern conveniences, and those prepared to consider insulation or energy-efficiency upgrades over time.

Property Details

Image Descriptions

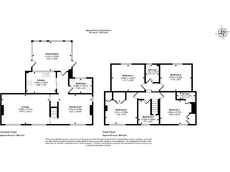
Floorplan Description

Rooms

Textual Property Features

Target Audience

AI Tags

Detected Visual Features

EPC Details

Nearby Schools

Nearest Bars And Restaurants

,,,,}

Nearest General Shops

,,}

Nearest Grocery shops

,,}

Nearest Supermarkets

,,}

Nearest Religious buildings

,,}

Nearest Medical buildings

,,,}

Nearest Airports

}

Nearest Leisure Facilities

,,,,}

Nearest Tourist attractions

,,}

Nearest Train stations

,,,,}

Nearest Bus stations and stops

,,,,}

Nearest Hotels

,,}

Tags

Local Market Stats

Similar Properties

Meta

High Res Images

Compatible Images

Low res Images

Thumbnails

Raw Images

High Res Floorplan Images

Compatible Floorplan Images

Low res Floorplan Images

FloorplanImages Thumbnail

Raw Floorplan Images