Large sunny garden, short walk to Hounslow station and driveway parking.
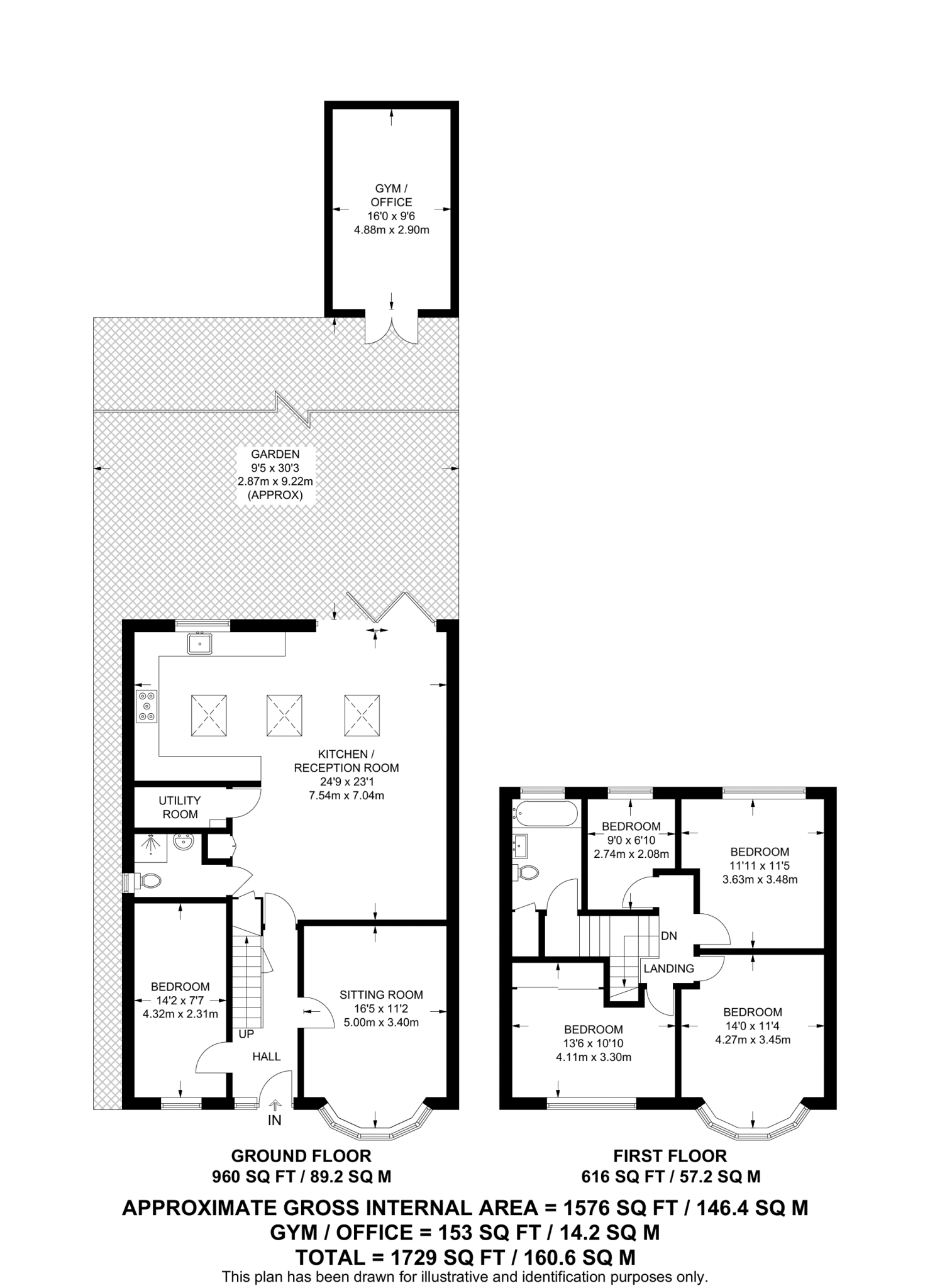
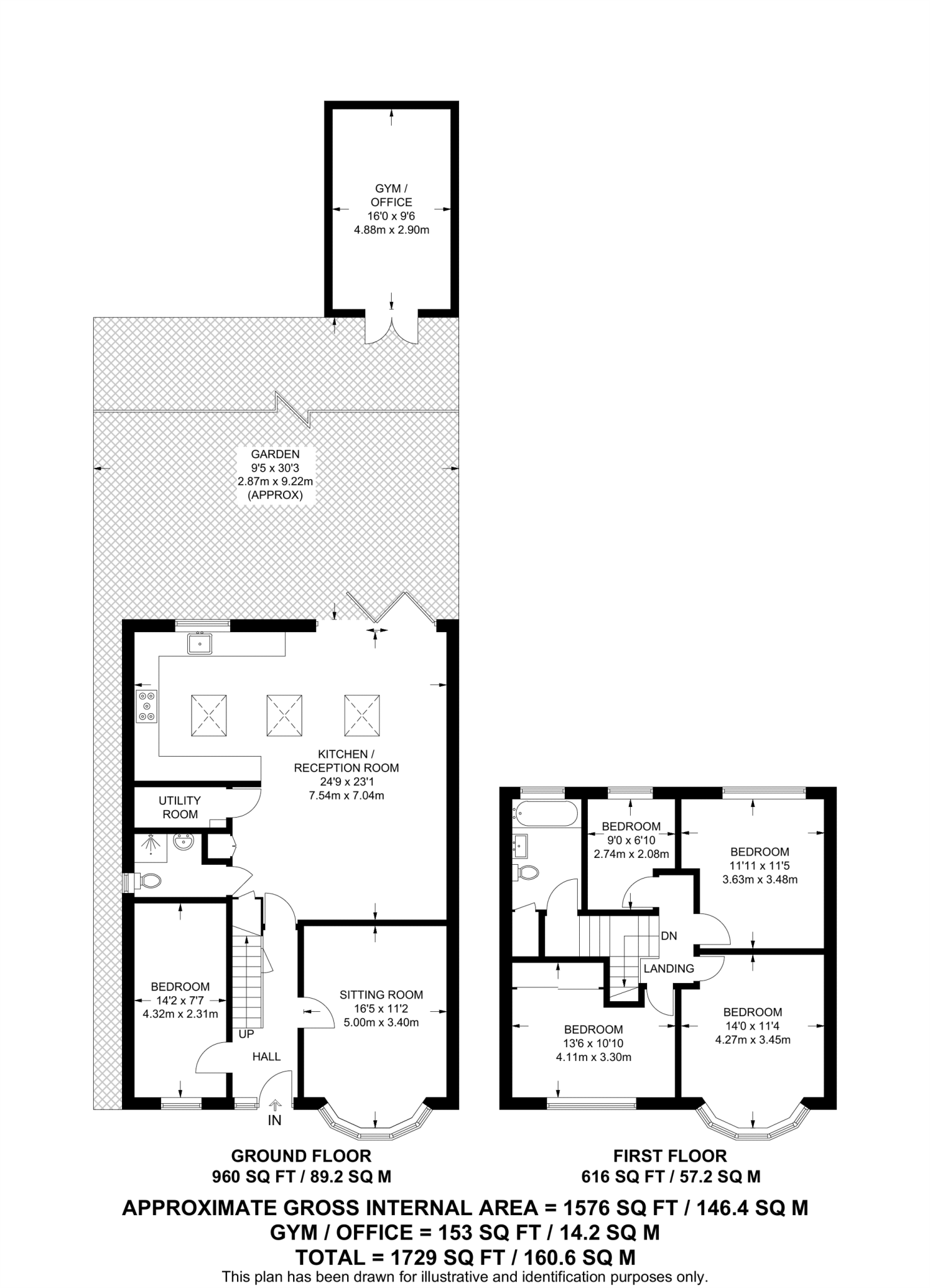
Five bedrooms plus flexible reception space and home office/gym
This recently renovated five-bedroom detached house on St. Stephens Road offers roomy family living across two floors, with a modern open-plan kitchen/reception/dining area and an additional front sitting room. The property includes two bathrooms, off-street driveway parking and a large sunny garden with a dedicated home office/gym — useful for remote working or hobbies.
Positioned a short walk from Hounslow station, the house benefits from fast broadband and excellent mobile signal, making commutes and connectivity straightforward. Several well-regarded primary and secondary schools are nearby, including two rated Outstanding, which will appeal to school-age families.
The house was built in the 1930s–40s with solid brick walls; double glazing was installed post-2002 and heating is mains gas with boiler and radiators. While the interior is presented as newly renovated with contemporary kitchen fittings and integrated appliances, the solid-wall construction likely lacks cavity insulation and may benefit from energy-efficiency improvements if desired.
Be aware the property sits in an area with higher crime levels and local deprivation indicators; buyers should consider this when assessing schooling routes, travel arrangements and insurance. Overall, this is a spacious, well-connected family home with modern interiors and a large garden, suited to buyers seeking immediate move-in condition with scope for targeted upgrades to improve thermal performance.
5 bedroom semi-detached house for sale in Bath Road, Hounslow, TW3 — £1,300,000 • 5 bed • 3 bath • 2994 ft²
5 bedroom detached house for sale in St. Stephens Road, Hounslow, TW3 — £900,000 • 5 bed • 2 bath • 1378 ft²
3 bedroom semi-detached house for sale in St Stephens Road, Hounslow, TW3 — £600,000 • 3 bed • 1 bath • 1397 ft²
5 bedroom semi-detached house for sale in St. Stephens Road, Hounslow, TW3 — £875,000 • 5 bed • 3 bath • 2111 ft²
5 bedroom detached house for sale in London Road, Twickenham, TW1 — £1,700,000 • 5 bed • 5 bath • 2825 ft²
3 bedroom house for sale in St. Stephens Road, Hounslow, TW3 — £655,000 • 3 bed • 2 bath • 1432 ft²


















































































































































































