Cash-ready investment close to station and seafront, renovation potential.
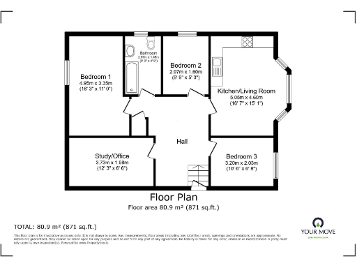
- Three bedrooms and open-plan kitchen/living, approx 871 sqft
- Chain-free sale; lower-ground apartment with bay window
- EPC rating C; mains gas central heating and double glazing
- Leasehold with only 56 years remaining — mortgage risk
- Public notice/repossession noted — requires urgent legal checks
- Area: seafront proximity, short walk to station and amenities
- High local crime and very deprived area — affects demand
- Ground rent £75; council tax very cheap
A spacious three-bedroom flat within a Victorian townhouse, positioned close to St Leonards seafront and local transport links. The lower-ground apartment offers generous room sizes, a bay-windowed living area with abundant natural light and an open-plan kitchen/living layout that suits rental or shared living. Laminate flooring, mains gas central heating and double glazing are in place, and the EPC is rated C.
The property is offered chain-free and has immediate buy-in potential for a cash purchaser or specialist investor. At about 871 sqft, it suits those seeking a central, seaside location with good access to shops, trains and local amenities. Ground rent is modest at £75 and council tax is very low, improving running costs for an owner-occupier or landlord.
Significant cautions accompany this sale: the lease has only 56 years remaining, which will seriously limit mortgage availability and may require a premium for a lease extension. The area records higher crime levels and sits within a very deprived local profile — factors that affect tenant demand and resale values. There is also a public notice/repossession recorded against the property, which buyers must investigate.
The building retains period character and obvious renovation potential, particularly to modernise finishes and flooring. Buyers should budget for possible works (cosmetic and investigative) and confirm service and appliance conditions, as these have not been independently verified. This is best suited to cash buyers or investors prepared to manage lease-extension and refurbishment costs.
2 bedroom flat for sale in Terrace Road, St Leonards-On-Sea, TN37 — £190,000 • 2 bed • 1 bath • 749 ft²
1 bedroom flat for sale in St. Margarets Road, St Leonards-On-Sea, TN37 — £145,000 • 1 bed • 1 bath • 667 ft²
3 bedroom flat for sale in Battle Road, St. Leonards-on-Sea, East Sussex, TN37 — £125,000 • 3 bed • 1 bath • 946 ft²
1 bedroom flat for sale in St Leonards-On-Sea, TN37 — £139,950 • 1 bed • 1 bath • 502 ft²
1 bedroom ground floor flat for sale in Carisbrooke Road, St. Leonards-On-Sea, TN38 — £170,000 • 1 bed • 1 bath • 589 ft²
2 bedroom flat for sale in Church Road, St Leonards On Sea, East Sussex, TN37 6HJ, TN37 — £190,000 • 2 bed • 1 bath • 711 ft²


















































