Chain-free one-bed maisonette with garden — refurbishment opportunity near Surbiton station.
Ground-floor one-bedroom period maisonette with private entrance
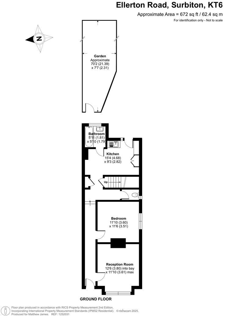
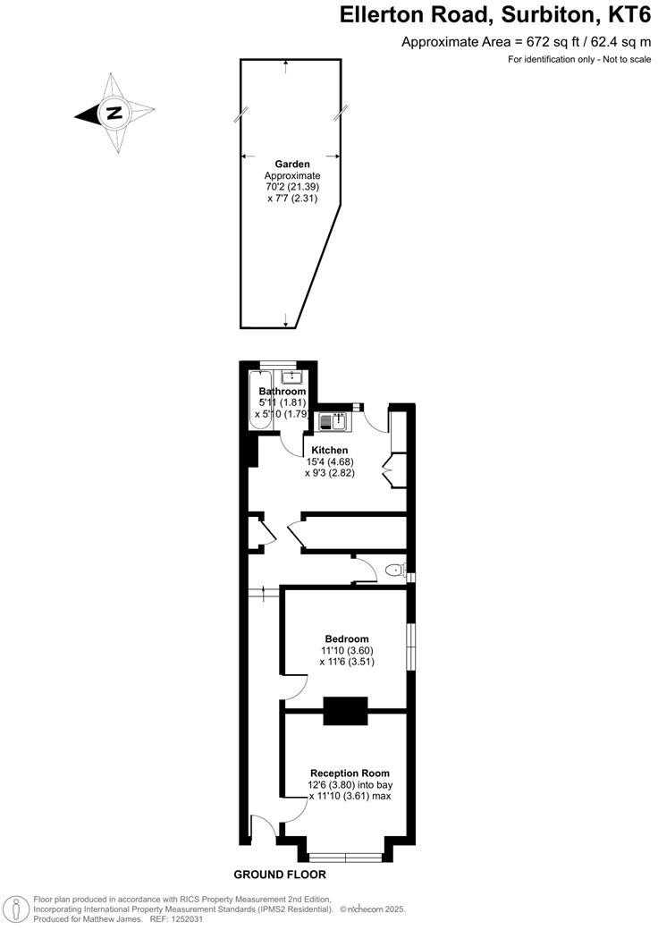
This ground-floor one-bedroom period maisonette combines traditional Victorian character with a private garden and a separate entrance — rare for a flat in Surbiton. The sitting room benefits from a bay window, high ceilings and a working fireplace that highlight the property’s original features. A generously sized kitchen-dining room leads directly to the rear garden, making indoor-outdoor living straightforward.
The flat is offered chain-free with a long lease of 162 years, making it well suited to first-time buyers or buyers seeking a convenient commuter base close to Surbiton mainline station and local shops. Council tax band C and fast broadband/ excellent mobile signal support modern living, while the surrounding area is very affluent with good local schools.
Practical points: the property requires refurbishment throughout, including likely improvements to insulation and heating. The bedroom shows older single-glazed windows and dated decor; walls are solid brick with assumed no cavity insulation. Heating currently relies on room heaters and mains gas, so buyers should budget for upgrading central heating and improving thermal efficiency.
With sensible investment, this spacious maisonette offers scope to modernise and add value while retaining period charm and a private garden — a compelling proposition for buyers wanting a characterful home close to transport links.
2 bedroom maisonette for sale in Ellerton Road, Surbiton, KT6 — £425,000 • 2 bed • 1 bath • 714 ft²
2 bedroom maisonette for sale in Ellerton Road, Surbiton, KT6 — £435,000 • 2 bed • 1 bath • 728 ft²
3 bedroom flat for sale in Lovelace Gardens, Surbiton, KT6 — £530,000 • 3 bed • 1 bath • 781 ft²
3 bedroom maisonette for sale in Villiers Road, Kingston Upon Thames, KT1 — £465,000 • 3 bed • 1 bath • 958 ft²
1 bedroom maisonette for sale in Cranes Park, Surbiton, KT5 — £300,000 • 1 bed • 1 bath • 575 ft²
1 bedroom flat for sale in Surbiton, KT6 — £244,950 • 1 bed • 1 bath • 476 ft²


















































