Well-presented Victorian terrace near Liverpool city centre, ideal for first-time buyers..
Three bedrooms and two bathrooms, versatile family layout
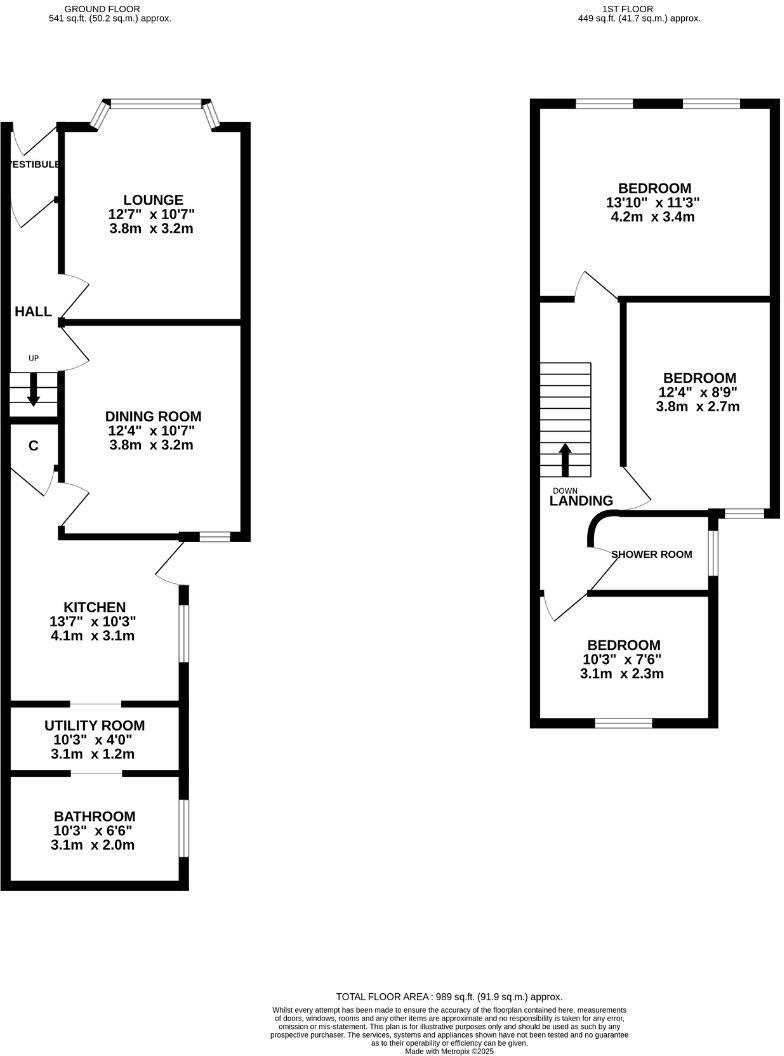
This deceptively spacious three-bedroom Victorian terrace on Halsbury Road offers a practical, well-presented home near Liverpool city centre. Two reception rooms and two bathrooms provide flexible living space for first-time buyers or a buy-to-let investor seeking immediate rental potential. The property is freehold, double-glazed, gas-heated with boiler and radiators, and extends to around 989 sq ft.
Outdoor space is modest: a small forecourt and a secluded rear courtyard offer private outdoor use but limited gardening potential. The mid-terrace plot and solid brick walls (likely uninsulated) mean straightforward improvement opportunities — adding wall insulation and other energy upgrades would improve comfort and running costs.
Location is convenient for transport, shops and local schools, and benefits from fast broadband and excellent mobile signal. Important practical points: the area scores as very deprived with very high crime levels locally, and the street scene is urban rather than leafy. Listed price of £150,000 reflects the property size and location, making it an attainable purchase for a first-time buyer prepared for modest urban living or an investor targeting good rental demand.
3 bedroom terraced house for sale in Ridley Road, Kensington, Liverpool, L6 — £125,000 • 3 bed • 1 bath • 857 ft²
3 bedroom terraced house for sale in Halsbury Road, Kensington, Liverpool, L6 — £125,000 • 3 bed • 1 bath
3 bedroom terraced house for sale in Romer Road, Liverpool, Merseyside, L6 — £140,000 • 3 bed • 1 bath • 999 ft²
3 bedroom terraced house for sale in Elstree Road, Kensington, L6 — £160,000 • 3 bed • 1 bath • 852 ft²
3 bedroom terraced house for sale in Leopold Road, Kensington, Liverpool, L7 — £190,000 • 3 bed • 1 bath • 883 ft²
3 bedroom terraced house for sale in Gredington Street, Liverpool, Merseyside, L8 — £200,000 • 3 bed • 2 bath • 933 ft²






































































































