PL19 0DJ - 3 bedroom terraced house for sale in Bannawell Street, Tavi…

View on Property Piper

3 bedroom terraced house for sale in Bannawell Street, Tavistock, PL19 0DJ, PL19

Summary - 16 BANNAWELL STREET TAVISTOCK PL19 0DJ

3 bed 1 bath Terraced

**Standout Features:**
- Spacious three-storey Victorian townhouse
- 3 double bedrooms and 2 reception rooms
- Large, south-west facing terraced garden
- Private courtyard accessible from the kitchen
- Chain-free sale for quick access
- Sought-after location near Tavistock town centre and excellent amenities
- Gas central heating and potential for renovations

**Summary:**
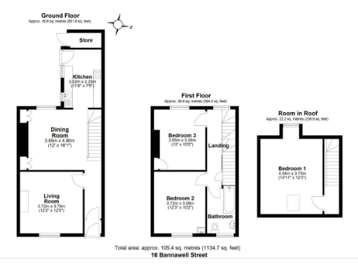
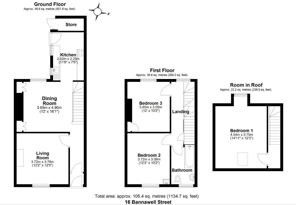
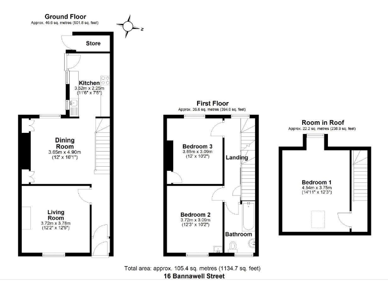
Discover this charming three-storey Victorian townhouse nestled in the heart of Tavistock, a thriving UNESCO World Heritage town. With a generous footprint of 1,134 square feet, the property boasts high ceilings and period features, creating an inviting atmosphere filled with natural light. It offers 3 double bedrooms and two spacious reception rooms, perfect for families or investors seeking rental potential.

Step outside to enjoy a private courtyard and a sizable terraced garden that, while currently needing some care, presents a fantastic canvas for gardening enthusiasts to transform into a green retreat with sun terraces, seating areas, and more. The property’s central location ensures easy access to shops, schools, and local amenities, ideal for family living or professional commuting.

With the added benefit of being sold chain-free, this home is ready for your personal touch. Although it has electric storage heating and may require some modern updates, it stands as an exceptional opportunity to create your dream space in a vibrant community. Don’t miss out on this unique chance to own a piece of history in Tavistock!

Property Details

Image Descriptions

Floorplan Description

Rooms

Textual Property Features

Detected Visual Features

EPC Details

Nearby Schools

Nearest Bars And Restaurants

,,,,}

Nearest General Shops

,,}

Nearest Grocery shops

,,}

Nearest Supermarkets

,,}

Nearest Religious buildings

,,}

Nearest Medical buildings

,,,}

Nearest Leisure Facilities

,,,,}

Nearest Tourist attractions

,,}

Nearest Train stations

,,,,}

Nearest Bus stations and stops

,,,,}

Nearest Hotels

,,}

Tags

Local Market Stats

AirBnB Data

Similar Properties

Meta

High Res Images

Compatible Images

Low res Images

Thumbnails

Raw Images

High Res Floorplan Images

Compatible Floorplan Images

Low res Floorplan Images

FloorplanImages Thumbnail

Raw Floorplan Images