Move-in-ready three-bed terrace with driveway and low-maintenance garden.
Paved driveway providing rare off-street parking for a terraced home
Bright through living and dining room with modern wood flooring
Modern fitted kitchen with integrated appliances and utility room
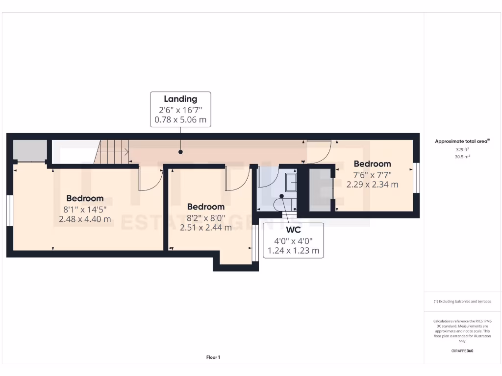
Stylish ground-floor bathroom plus upstairs WC for convenience
Landscaped, low-maintenance rear garden with patio and artificial lawn
Small overall property and plot; total size approximately 736 sq ft
Very deprived local area with high crime rates — factual concern
Several nearby schools rated Good; one local school Requires Improvement
This three-bedroom Victorian terraced home on Baxters Lane offers an affordable, move-in-ready option for first-time buyers seeking a well-updated property with practical extras. The paved driveway is an uncommon benefit for this style, providing valuable off-street parking. Inside, a bright through living and dining room flows to a modern fitted kitchen with integrated appliances and a separate utility room.
Upstairs are three bedrooms and a handy WC, with a stylish ground-floor bathroom completing the layout. The rear garden has been landscaped for low maintenance with a paved patio and artificial lawn, suited to buyers who prefer outdoor space without heavy upkeep. Fast broadband and excellent mobile signal support home working and streaming.
Be clear about the trade-offs: the overall property and plot are small, and the local area scores high for deprivation with elevated crime levels. While the immediate neighbourhood offers several Good-rated primary and secondary schools, one nearby school is reported as Requires Improvement. Council tax costs are very low, and there is no flood risk for this postcode.
This home suits a buyer prioritising location, convenience, and low-running maintenance over generous internal or external space. It’s a practical, cost-conscious step onto the property ladder with scope to personalise over time.
3 bedroom end of terrace house for sale in Sutton Heath Road, St. Helens, Merseyside, WA9 — £150,000 • 3 bed • 1 bath • 865 ft²
3 bedroom terraced house for sale in Herbert Street, St. Helens, WA9 — £120,000 • 3 bed • 1 bath • 808 ft²
3 bedroom terraced house for sale in Leonard Street, St. Helens, WA9 — £125,000 • 3 bed • 1 bath • 764 ft²
3 bedroom terraced house for sale in Mill Lane, St Helens, WA9 4EY, WA9 — £160,000 • 3 bed • 1 bath • 958 ft²
3 bedroom semi-detached house for sale in Penhurst Way, St. Helens, Merseyside, WA9 — £200,000 • 3 bed • 2 bath • 729 ft²
3 bedroom end of terrace house for sale in Highfield Street, St. Helens, Merseyside, WA9 — £210,000 • 3 bed • 2 bath • 936 ft²










































































































