Detached, newly renovated three-bedroom house, approx. 1,625 sq ft
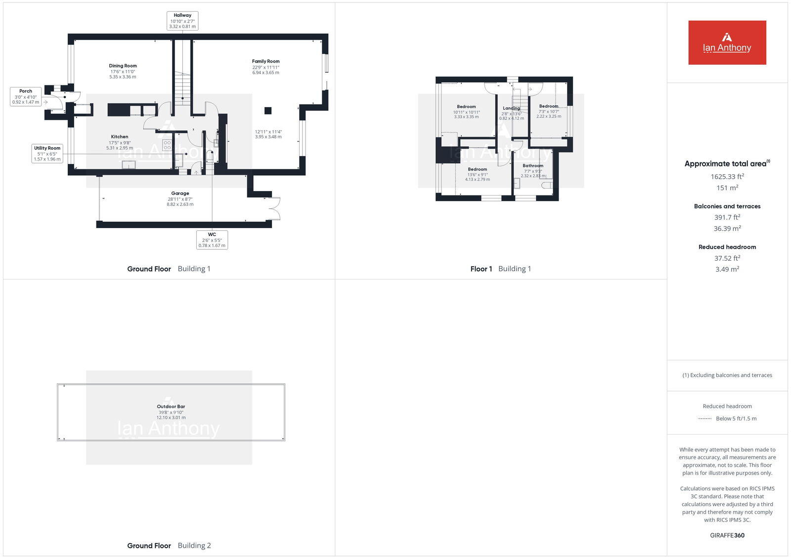
Set on a generous plot in desirable Fernhurst Gate, this newly renovated three-bedroom detached house blends contemporary fixtures with substantial living space (circa 1,625 sq ft). The extended open-plan family room, sliding patio doors and large picture windows create a bright social heart, while the modern kitchen/diner and separate dining room give everyday flexibility for families or home entertainers.
Outside is a professionally landscaped rear garden with composite decking, artificial lawn, a covered exercise pool and dedicated bar area — a low-maintenance, private entertaining space. Off-road parking and a long integrated garage add practical convenience, and Ultrafast broadband, excellent mobile signal and very low local crime support comfortable modern living.
The home is well positioned for commuters with easy access to the M58/M57 and nearby rail links, and it sits in a very affluent area served by several highly rated primary schools. The property also offers potential for further value-add — two dormer windows and an attic roofline indicate scope for a loft/dormer conversion subject to consent.
Buyers should note a few factual points: the current EPC is 64 (D) with potential to reach 80 (C); cavity walls are assumed to be uninsulated; services and appliances have not been tested and require buyer verification; and the garden’s covered exercise pool incurs a monthly operating cost of £30. Council Tax is Band E (above average).



















































































































































