Grand family home on extensive private grounds, ready for modern living.
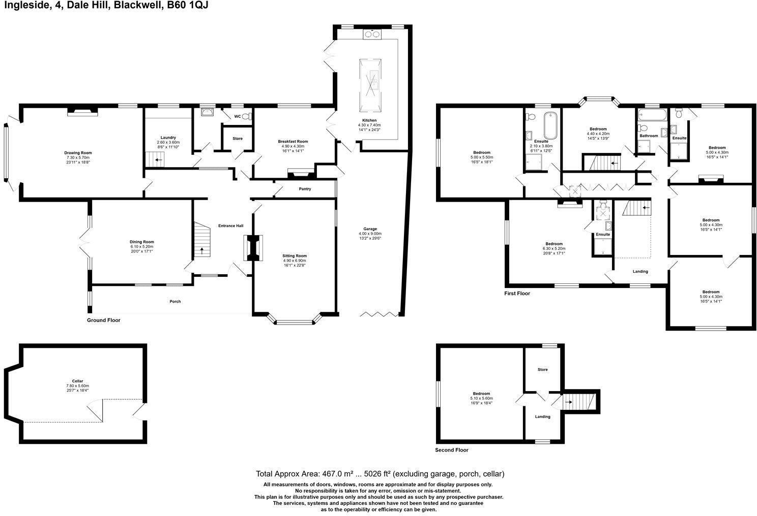
- Seven bedrooms, four bathrooms across 5,026 sq ft
- Very large private plot with gated entrance and terraces
- Bespoke kitchen, roof lantern and high-end appliances
- Three en-suites plus family bathroom; flexible bedroom layout
- Large garage with internal access; utility room and pantry
- Double glazing, mains gas boiler and fast broadband
- Located in affluent Blackwell with Good and top schools nearby
- Verify construction date/age and confirm any maintenance needs
Set behind secure electric gates on a very large private plot, this substantial seven-bedroom detached house combines Tudor-style character with contemporary family living across 5,026 sq ft. The heart of the home is a bespoke kitchen with granite worktops, a roof lantern and high-end appliances, opening to terraces and large gardens—ideal for entertaining and daily family life.
Interior highlights include generous reception rooms with original-style details: Minton tiled floors, moulded plaster ceilings, herringbone parquet and panelled walls. Six bedrooms (three en-suite) sit on the first floor with a further large double on the second floor, providing flexible accommodation for a growing family or multigenerational living.
Practical benefits include a large garage with internal access, double glazing, mains gas central heating and excellent broadband and mobile signal. The setting in affluent Blackwell offers access to several Good and highly ranked schools, easy road links (M5/M42/A38) and nearby train services, while Lickey Hills country walks are within easy reach.
Note the property appears to combine period styling with a later construction date; prospective buyers should verify age and construction details. Council Tax Band listed as G; viewing recommended to confirm specification and any maintenance or upgrade requirements before purchase.
4 bedroom detached house for sale in The Avenue, Blackwell, B60 — £899,000 • 4 bed • 2 bath • 2864 ft²
6 bedroom detached house for sale in Fairways Drive, Blackwell, Bromsgrove, Worcestershire, B60 — £795,000 • 6 bed • 3 bath • 2093 ft²
5 bedroom detached house for sale in St. Catherines Road, Blackwell, B60 — £975,000 • 5 bed • 3 bath • 2967 ft²
4 bedroom detached house for sale in Linthurst Newtown, Blackwell, Bromsgrove, Worcestershire, B60 — £850,000 • 4 bed • 2 bath • 1991 ft²
5 bedroom detached bungalow for sale in St. Catherines Road, Blackwell, B60 — £800,000 • 5 bed • 2 bath • 1939 ft²
7 bedroom detached house for sale in St. Catherines Road, Blackwell, B60 — £1,650,000 • 7 bed • 6 bath • 5657 ft²






























































































