**Standout Features:**
- Freehold semi-detached home
- Two double bedrooms
- Garage with own driveway
- No upward chain
- Good-sized lounge with bay window
- Kitchen/diner with garden access
- L-shaped garden with patio and lawn
- Double glazed and gas central heating
**Potential Concerns:**
- Kitchen and interiors are dated and require renovation
- Small overall size (408 sq ft)
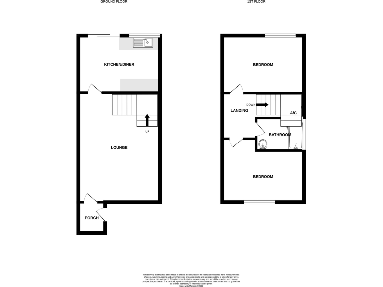
Discover this charming two-bedroom, semi-detached freehold home in the desirable Randlay area, offered with the convenience of no upward chain. Ideal for first-time buyers or investors, this property features a welcoming lounge with a bay window and a cozy gas fire, leading into a kitchen/diner that opens to a lovely L-shaped rear garden—a perfect space for outdoor gatherings or a future renovation project.
Upstairs, you'll find two generously-sized double bedrooms and a bathroom, making this an ideal family home. The property includes essential amenities like a garage with its own driveway and excellent broadband speed, making it suitable for remote work. While the kitchen is in need of modernization, this presents a unique opportunity to customize your space.
Close to quality local schools and transport links, this home offers potential buyers a charming blend of comfort and practicality, with great community amenities nearby. Don’t miss this chance to make it your own—properties like this do not last long!
2 bedroom semi-detached house for sale in Clover Grove, Randlay, TF3 — £192,950 • 2 bed • 1 bath • 881 ft²
2 bedroom semi-detached house for sale in Speedwell Ridge, Telford, Shropshire, TF3 — £195,000 • 2 bed • 1 bath • 968 ft²
4 bedroom detached house for sale in Knowle Wood View, Telford, TF3 — £325,000 • 4 bed • 2 bath • 1471 ft²
2 bedroom terraced house for sale in Boulton Grange, Randlay, Telford, TF3 — £159,950 • 2 bed • 1 bath • 751 ft²
3 bedroom semi-detached house for sale in Speedwell Ridge, Telford, TF3 — £229,950 • 3 bed • 1 bath • 850 ft²
3 bedroom detached house for sale in Broad Oaks, Randlay, TF3 — £250,000 • 3 bed • 1 bath • 786 ft²










































