**Standout Features:**
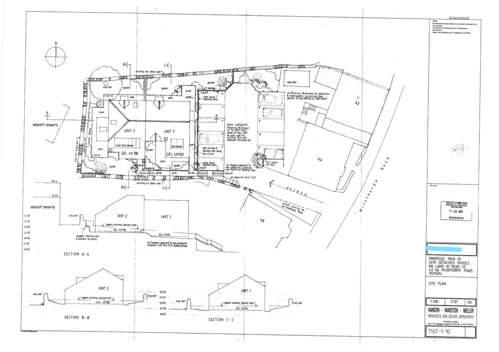
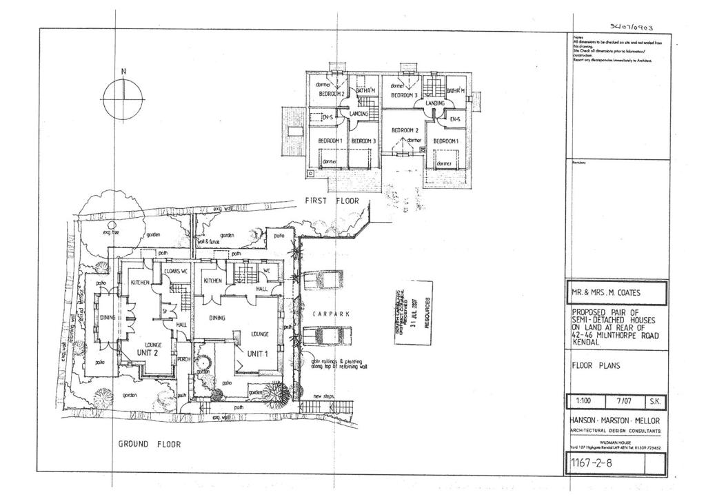
- Development site with planning permission for two semi-detached, three-bedroom homes.
- Located within walking distance to Kendal Town Centre and local amenities.
- Convenient access to major transport links, including a mainline railway station.
- Local occupancy conditions apply, ensuring homes benefit the community.
**Summary:**
This unique development opportunity in Kendal offers the potential for two semi-detached, three-bedroom houses, perfectly positioned just a short walk from the bustling town center. With planning permission already secured (Application No: SL/2007/0903) and a material start confirmed, this site is ideal for builders or developers looking to invest in a growing area with high demand.
Situated in a popular residential neighborhood, the location boasts excellent access to local schools, parks, and quick transport links to the Lake District and M6 motorway. A right of access for parking has been established, enhancing convenience for future residents.
While the property is constrained by local occupancy conditions—catering specifically to individuals or families with ties to the area—this could potentially limit use as a second home or holiday let, making it an appealing proposition for those invested in community living. Don't miss this chance to secure a valuable asset in a sought-after location. Now's the time to envision your next project and capitalize on the residential needs of Kendal!
3 bedroom semi-detached house for sale in Plot 3, The Milnthorpe, Meadow Rigg, Kendal, LA9 — £315,000 • 3 bed • 1 bath • 922 ft²
4 bedroom detached house for sale in The Conifers, Parkside Road Kendal, Cumbria, LA9 7LG, LA9 — £595,000 • 4 bed • 1 bath • 1613 ft²
Plot for sale in Bainbridge Road, Sedbergh, Cumbria, LA10 — £400,000 • 1 bed • 1 bath
2 bedroom semi-detached house for sale in High Garth, Kendal, LA9 5NR, LA9 — £235,000 • 2 bed • 1 bath • 768 ft²
Land for sale in Land at Garnett Bridge, Kendal, Cumbria, LA9 — £285,000 • 1 bed • 1 bath
2 bedroom semi-detached house for sale in Kentwood Road, Kendal, LA9 — £270,000 • 2 bed • 2 bath • 604 ft²






































