Second-floor, balcony and parking — ideal commuter first home.
No onward chain; vacant possession for quick completion
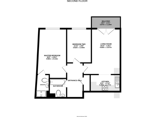
A well-presented two-bedroom apartment on the second floor, ideal for first-time buyers or investors seeking low-maintenance town-centre living. The bright open-plan living room opens onto a private balcony overlooking communal lawns, and the master bedroom includes an en-suite shower for everyday convenience.
Practical benefits include allocated off-street parking, fast broadband and excellent mobile signal, plus a short walk to Bracknell train station and local shops. The building is modern and appears well maintained, with double glazing and communal grounds that add a sense of space despite the compact footprint.
Important tenure and running-cost facts are clear: the property is leasehold with about 104 years remaining, an annual service charge around £2,400 and ground rent about £225. Heating is by electric storage heaters, which may mean higher running costs compared with gas-heated homes.
Sold with vacant possession and no onward chain, this apartment offers a straightforward purchase route and immediate occupation. It will suit buyers wanting a commuter-friendly, move-in-ready home, or landlords targeting reliable town-centre lets — though budget for service charges and electric heating when calculating affordability.
2 bedroom flat for sale in Broad Lane, Bracknell, Berkshire, RG12 — £280,000 • 2 bed • 2 bath • 449 ft²
2 bedroom apartment for sale in Old Bracknell Lane West, Bracknell, RG12 — £300,000 • 2 bed • 2 bath • 775 ft²
2 bedroom apartment for sale in Newlands Place, Bracknell, Berkshire, RG12 — £275,000 • 2 bed • 1 bath • 638 ft²
2 bedroom apartment for sale in Larges Lane, Bracknell, RG12 — £300,000 • 2 bed • 1 bath • 797 ft²
2 bedroom apartment for sale in Fleming Place, Bracknell, Berkshire, RG12 — £280,000 • 2 bed • 2 bath • 721 ft²
1 bedroom apartment for sale in Kelvin Gate, Bracknell, RG12 — £167,500 • 1 bed • 1 bath • 359 ft²






































