Extant consent for 64-room aparthotel and ground-floor restaurant.
Prominent dual frontages on Coney Street and Market Street
A rare freehold redevelopment opportunity in the heart of York city centre, this dual-frontage period building offers immediate conversion potential. Extant planning permission and listed building consent are in place for ground-floor retail/restaurant use and a 64-room aparthotel across the upper floors, plus an additional roof storey. The property occupies a prominent corner on Coney Street and Market Street, benefitting from high pedestrian footfall and strong surrounding national retailers.
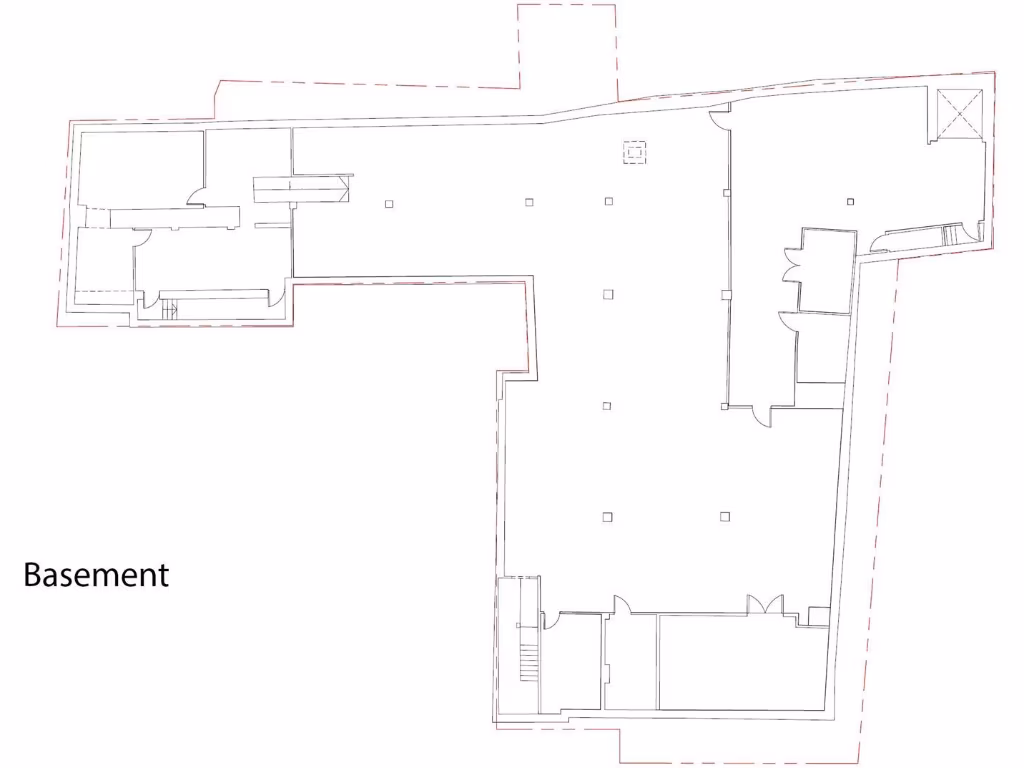
The Grade II listed façade and Tudor Revival character are major assets for a hospitality or mixed-use scheme, delivering street-level presence and distinctive appeal. The building extends to approximately 32,100 sq ft GIA across basement to second floor, with vacant possession and prior operator interest offering a clear route to delivery for a developer or investor.
Buyers should note material constraints: listed status will restrict some works and add consenting complexity and cost, and existing heating is electric storage heaters. The location records very high crime levels and sits in a deprived, multicultural student neighbourhood, which may affect yield profile and operational decisions. Secondary glazing is present; full internal refurbishment will be required to realise a high-quality aparthotel product.
This is a strategic central asset for an investor or developer able to manage listed building requirements and urban operational considerations. With CEPC rating B, excellent transport links and the nearby Riverside Coney Street redevelopment, the property has strong upside for a successfully executed conversion to aparthotel and retail use.
Commercial property for sale in Coney Street, York City Centre, York, YO1 — £4,950,000 • 64 bed • 64 bath • 10320 ft²
High street retail property for sale in 48 Coney Street, York, YO1 9ND, YO1 — £5,500,000 • 1 bed • 1 bath
Commercial property for sale in Coppergate, York, North Yorkshire, YO1 — £1,200,000 • 1 bed • 1 bath • 3155 ft²
Mixed use property for sale in 31-33 Goodramgate, York, YO1 7LS, YO1 — £1,500,000 • 1 bed • 1 bath
High street retail property for sale in York, YO1 — £625,000 • 1 bed • 1 bath • 1500 ft²
Commercial property for sale in Micklegate, York, YO1 — £3,500,000 • 9 bed • 6 bath • 14927 ft²


































































