Spacious family home with garden, parking and excellent village schools nearby.
- Solar panels reduce energy costs
- Large open-plan lounge and dining room
- Three good-sized bedrooms
- Single bathroom; one shower only
- Block-paved driveway; space for garage (STP)
- Generous, enclosed rear garden with patio and shed
- Non-traditional construction may affect mortgage/insurance
- Some dated internal finishes requiring cosmetic update
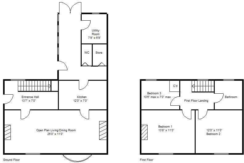
This three-bedroom semi sits on a generous plot in Branton, offering comfortable family living across two storeys. The house benefits from a large open-plan lounge/dining room, a modern fitted kitchen, utility and ground-floor WC, plus solar panels that help reduce running costs.
Outside, a block-paved driveway provides ample off-street parking with room for a garage subject to planning, and the rear garden is well enclosed with a patio, lawn and shed — good scope for children and gardening. Ultrafast broadband and very low local crime make the location especially practical for families and home workers.
Buyers should note the property uses non-traditional construction, which may affect mortgage or insurance options; obtain specialist advice if important. Some internal areas (for example the dated entranceway) show their age and would benefit from cosmetic updating. The house has one bathroom and a single shower, which may be a consideration for larger households.
Overall this freehold home combines space, energy-efficiency (solar panels) and village convenience near good primary and secondary schools. It suits families seeking a ready-to-live-in property with clear potential to personalise and improve over time.
3 bedroom semi-detached house for sale in Lillford Road, Branton, Doncaster, DN3 — £185,000 • 3 bed • 1 bath • 625 ft²
3 bedroom semi-detached house for sale in Brook Way, Arksey, Doncaster, DN5 — £175,000 • 3 bed • 1 bath • 926 ft²
3 bedroom end of terrace house for sale in Acacia Road, Cantley, Doncaster, DN4 — £180,000 • 3 bed • 1 bath • 780 ft²
3 bedroom detached house for sale in Warning Tongue Lane,
Branton,
Doncaster,
DN3 3QU, DN3 — £280,000 • 3 bed • 1 bath • 368 ft²
3 bedroom detached bungalow for sale in Alliss Road, Branton, Doncaster, DN3 — £259,950 • 3 bed • 1 bath • 868 ft²
3 bedroom semi-detached house for sale in Violet Avenue, Edlington, Doncaster, DN12 — £140,000 • 3 bed • 1 bath • 764 ft²


























































































