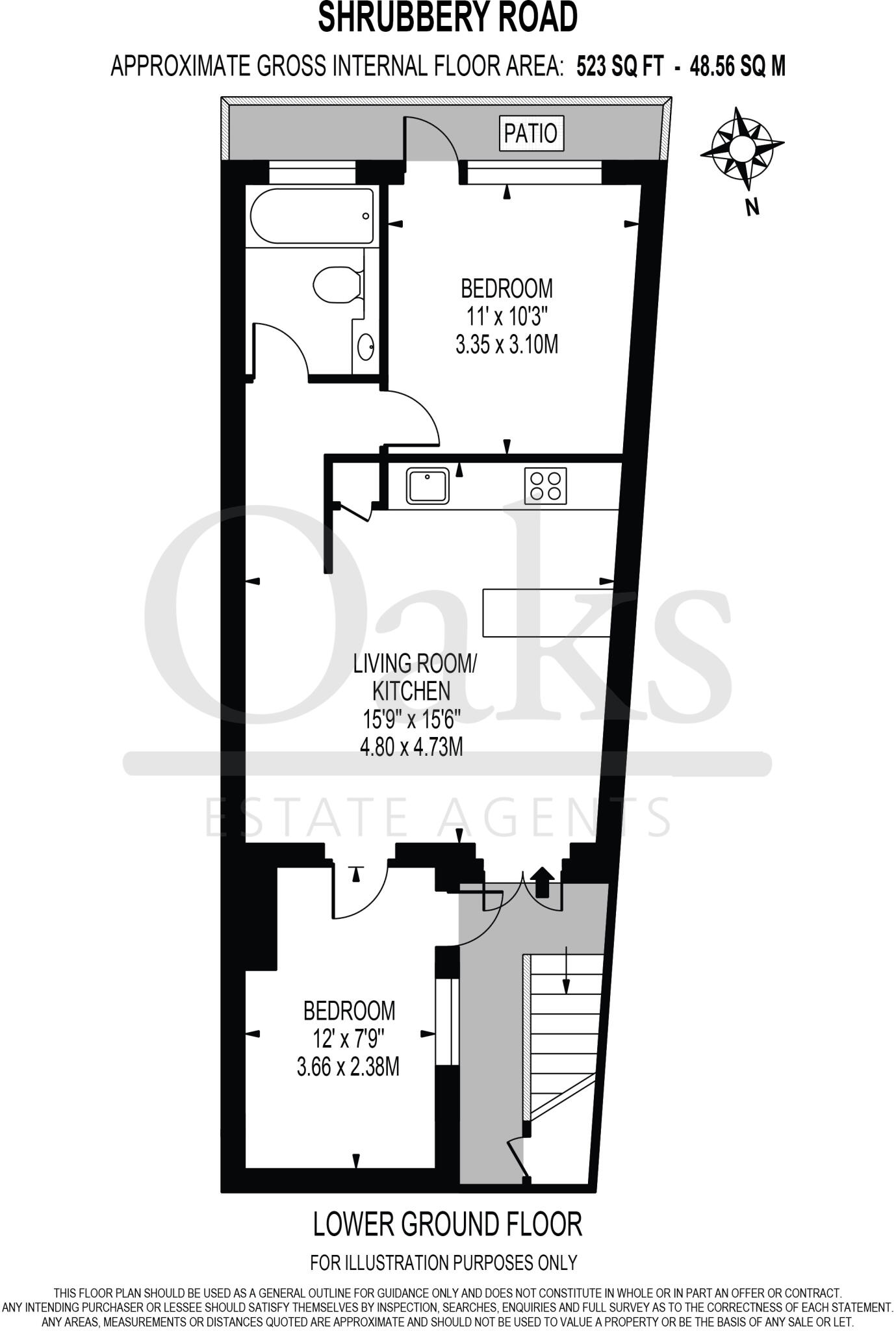
**Standout Features:**
- Two spacious double bedrooms
- Modern open-plan living space with integrated kitchen appliances
- Newly refreshed large bathroom
- Private courtyard area
- Excellent transport links to Clapham Junction and central London
- Convenient access to local amenities and green spaces
**Concerns:**
- Small overall size at 523 square feet
- High local crime rate
- Solid brick walls with assumed no insulation
Nestled in a quiet location within the vibrant community of Streatham, this charming two-bedroom flat effortlessly combines modern comfort with convenience. The heart of this home is its stylish open-plan living area, perfect for entertaining, complemented by a well-equipped kitchen and bright living space. Both double bedrooms are a great size, bringing ample natural light, while the recently upgraded bathroom adds a touch of luxury.
Enjoy the added perk of a private courtyard, ideal for relaxing or outdoor dining. Commuters will appreciate being within easy reach of both Streatham and Streatham Hill stations, making for quick journeys to Clapham Junction and the city. Despite the property’s compact size, it provides a wonderful opportunity for first-time buyers seeking a modern city living experience.
While the high local crime rate and potential lack of insulation may be considerations, the community offers numerous nearby amenities—from cafes to supermarkets—and excellent educational institutions, making it a practical choice for families. With its competitive price of £280,000 and promising rental potential, this flat presents a unique opportunity that won’t last long. Act fast to secure your urban retreat!
2 bedroom flat for sale in Gleneagle Road, Streatham, London, SW16 — £375,000 • 2 bed • 1 bath • 461 ft²
2 bedroom apartment for sale in Stanthorpe Road, London, SW16 — £325,000 • 2 bed • 1 bath • 620 ft²
1 bedroom flat for sale in The High, Streatham, SW16 — £285,000 • 1 bed • 1 bath • 504 ft²
2 bedroom flat for sale in Baldry Gardens, London, SW16 — £280,000 • 2 bed • 1 bath • 458 ft²
2 bedroom flat for sale in Hopton Road, Streatham, SW16 — £350,000 • 2 bed • 1 bath • 678 ft²
2 bedroom flat for sale in Tankerville Road, Streatham, London, SW16 — £450,000 • 2 bed • 1 bath • 656 ft²


































