Spacious three-level home near transport and green space for active families.
High-spec townhouse completed in 2022 with modern fixtures and fittings
Solar panels and burglar alarm for lower energy bills and security
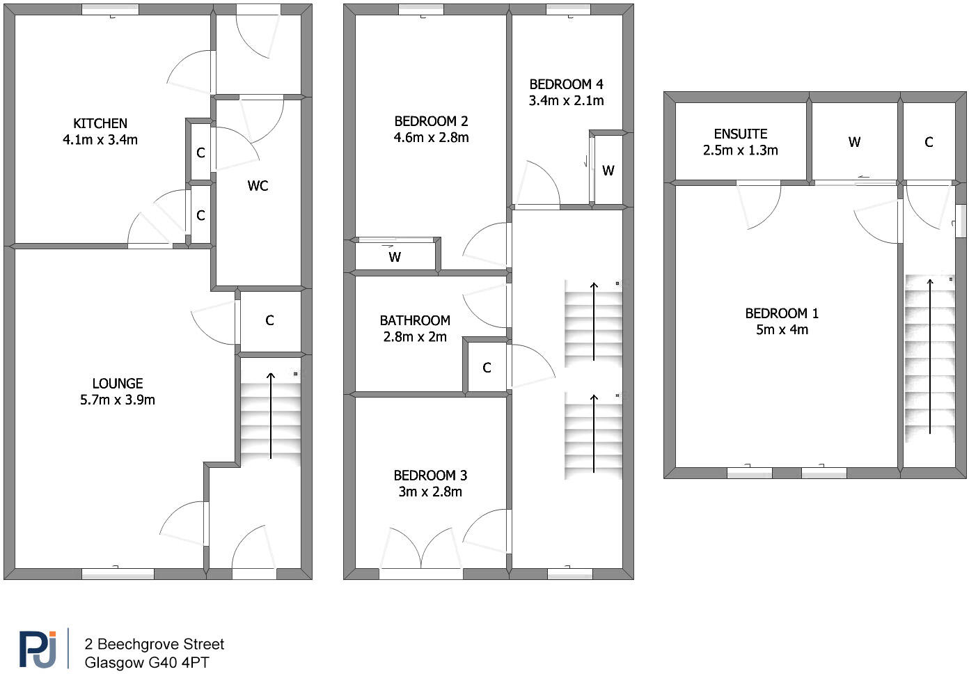
Principal bedroom with walk-in wardrobe and en-suite shower room
Westerly-facing enclosed rear garden and off-street driveway parking
About 1,006 sq ft — relatively compact for a four-bedroom home
Area classified as very deprived; may affect resale and local services
Tenure not specified — buyer should verify ownership details
EPC Band B and cheap council tax help running costs
Light-filled, contemporary living across three levels makes this four-bedroom townhouse ideal for growing families. Completed in 2022, the home offers a modern fitted kitchen with integrated appliances, a principal bedroom with en‑suite, and a spacious lounge/dining room with full-height windows. Solar panels, a burglar alarm and gas central heating help keep running costs reasonable, supported by an Energy Performance rating of B and low council tax.
Outside, the property benefits from an off-street driveway, a neatly kept front lawn and a fully enclosed westerly-facing rear garden that captures afternoon sun — useful for outdoor play and evening entertaining. The layout delivers flexibility with three bedrooms on the first floor and a generous attic principal bedroom with walk-in wardrobe and en-suite.
Transport and amenities are convenient: Dalmarnock train station, the M74, large supermarkets and leisure facilities are all close by. The Clyde Walkway and local woodland parks are within walking distance, offering easy access to outdoor recreation.
Buyers should note the wider area is classified as very deprived and locally described as hard-pressed; this may affect long-term resale and local services. Tenure details are not specified and should be confirmed. Overall internal size is modest at about 1,006 sq ft, so buyers seeking very large rooms should view to confirm space meets their needs.
4 bedroom terraced house for sale in Greenknowe Court, Pollokshaws, Glasgow, G43 — £370,000 • 4 bed • 4 bath • 1522 ft²
4 bedroom detached house for sale in 2 Inverlair Drive, Cathcart, Glasgow, G43 2AY, G43 — £379,000 • 4 bed • 2 bath • 1334 ft²
4 bedroom town house for sale in Maltings Wynd,
Dundashill,
Glasgow,
G4 9BF, G4 — £345,000 • 4 bed • 3 bath • 1141 ft²
4 bedroom town house for sale in Maltings Wynd, Dundashill, Glasgow, G4 9BF, G4 — £345,000 • 4 bed • 3 bath • 1141 ft²
3 bedroom terraced house for sale in Cuddies Walk, Glasgow, G4 — £290,000 • 3 bed • 3 bath • 1179 ft²
2 bedroom terraced house for sale in Webster Street, Glasgow, G40 — £220,000 • 2 bed • 2 bath • 721 ft²










































































































































