Affordable three-bedroom terrace with upgrade potential and low running costs..
- Three bedrooms with flexible layout for family or home office
- New roof and triple glazing to some rooms reduce immediate costs
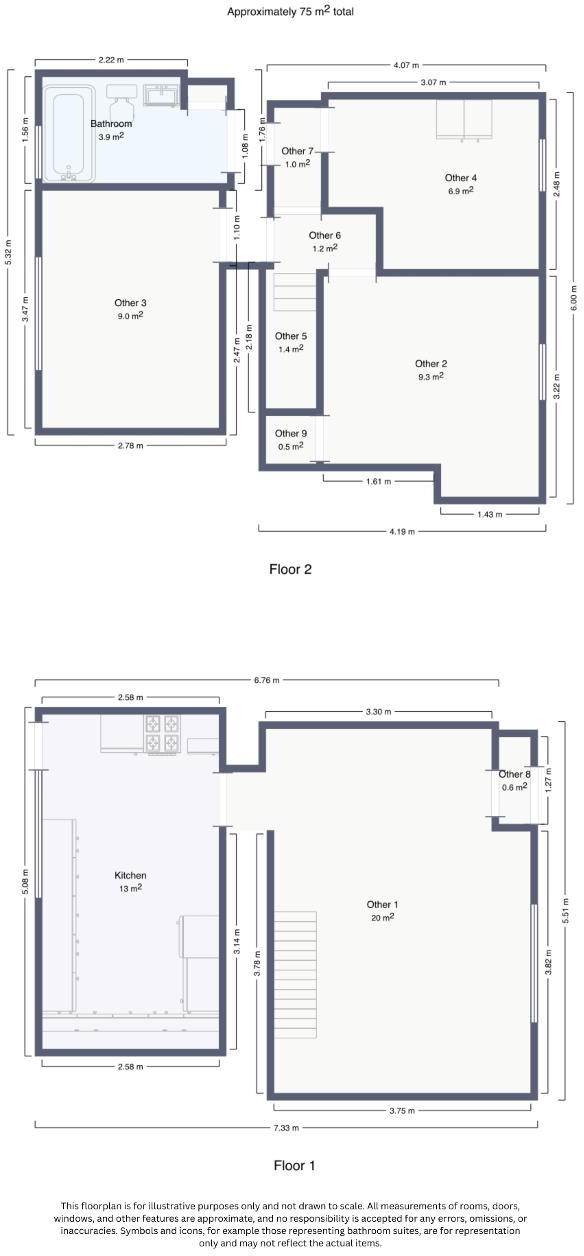
- Small overall size: 807 sq ft, compact plot and rooms
- Dated exterior and reported potential damp; remedial work likely
- Very deprived area with above-average crime statistics
- Fast broadband, average mobile signal and very low council tax
- Freehold, chain free — straightforward purchase process
- Local market dominated by renters; consider rental/parking prospects
A compact three-bedroom terraced house on Russell Street, suited to first-time buyers or investors seeking an affordable entry into Merthyr Tydfil. The property offers a large living space, usable rear garden and recent practical upgrades including a new roof and triple glazing to select rooms, which help reduce immediate maintenance and heating costs.
Inside, the layout is straightforward across two storeys with a comfortable lounge, functional kitchen and a family bathroom on the first floor. The three bedrooms provide flexible space for a small family, home office or rental occupancy. Fast broadband, average mobile signal and very low council tax make day-to-day running costs comparatively cheap.
Buyers should be aware this is a small-footprint property in a very deprived area with above-average crime and a transitional neighbourhood profile. The exterior is dated and photos note possible damp issues and general fixer-upper potential; some cosmetic and remedial work may be required. The local market includes many renters, so owner-occupiers should consider parking, security and long-term neighbourhood changes.
Offered chain free on freehold tenure, this home represents strong potential for someone prepared to invest time and budget into improvement. For first-time buyers it can be a practical, low-cost starting home; for investors it offers straightforward conversion to a rental let after minor works, subject to survey findings.
2 bedroom terraced house for sale in Glendower Street, Merthyr Tydfil, CF48 3SG, CF48 — £114,995 • 2 bed • 1 bath • 721 ft²
3 bedroom terraced house for sale in Heol Llwyn Drysi, Merthyr Tydfil, CF48 1LP, CF48 — £115,000 • 3 bed • 1 bath • 834 ft²
3 bedroom end of terrace house for sale in Gwladys Street, Merthyr Tydfil, CF48 2AU, CF48 — £179,950 • 3 bed • 1 bath
3 bedroom terraced house for sale in William Street, Merthyr Tydfil, CF47 — £135,000 • 3 bed • 1 bath • 729 ft²
3 bedroom terraced house for sale in Poplar Terrace, Pentrebach, Merthyr Tydfil, CF48 4BW, CF48 — £130,000 • 3 bed • 1 bath • 773 ft²
3 bedroom terraced house for sale in Brookfield Terrace, Troedyrhiw, Merthyr Tydfil, CF48 4HZ, CF48 — £119,950 • 3 bed • 2 bath • 1053 ft²


















































