**Standout Features:**
- **Detached Mid-20th Century Building:** Unique commercial structure with renovation possibilities.
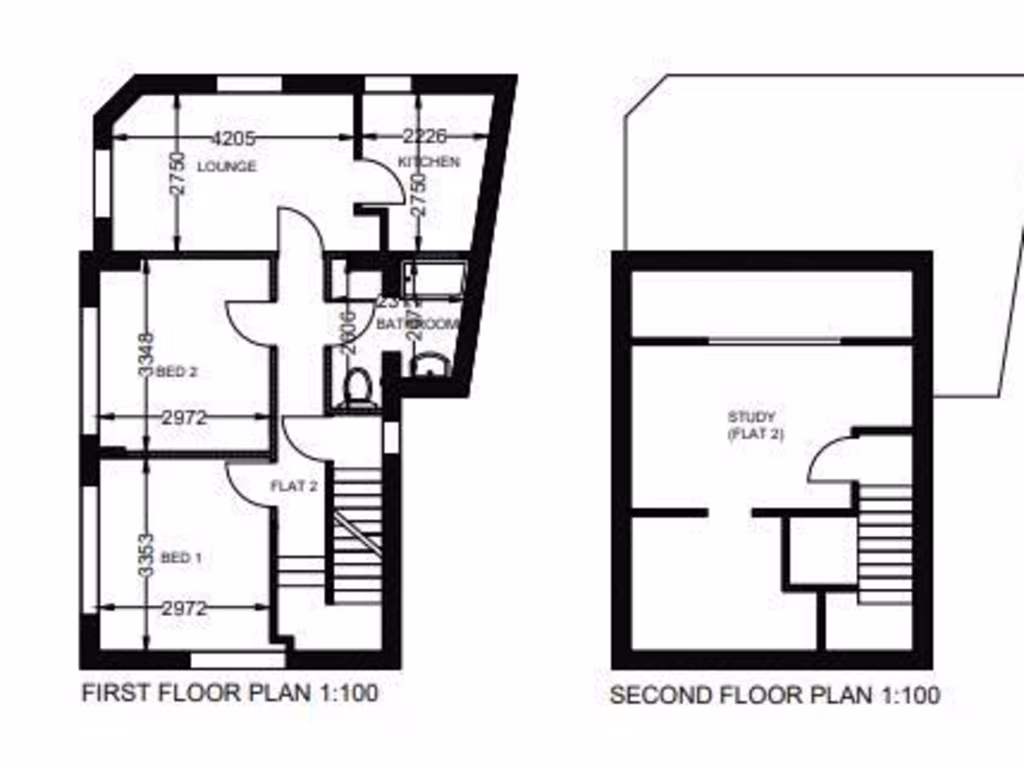
- **Planning Permission Granted:** Conversion into two apartments, enhancing investment potential.
- **Prime Location:** Close to St. Peter’s and Bootham Schools, York Hospital, and the city center.
- **Freehold Tenure:** Ideal for ownership flexibility.
- **Excellent Mobile & Broadband Connectivity:** Perfect for modern living.
**Potential Concerns:**
- **Renovation Needed:** Property requires updates to convert it into residential use.
- **Limited Outdoor Space:** Small front yard with no garden.
- **High Local Crime Rate:** Consider safety aspects in the neighborhood.
**Summary:**
An exciting investment opportunity in a sought-after York location, this detached brick building showcases significant renovation potential with planning consent for conversion into two apartments. The proposed layout includes a one-bedroom ground floor unit and a spacious two-bedroom first floor with an attic room. Just a short stroll from respected schools, healthcare facilities, and the city center, this property offers both convenience and access to local amenities. With excellent mobile signal and fast broadband, it’s ideal for modern living. While some renovation will be necessary, this commercially situated gem is perfect for developers and investors looking for a unique project. Don't miss out on this chance to capitalize on its future potential!























































