RH12 1SP - 2 bedroom maisonette for sale in Worthing Road, Horsham, RH…

View on Property Piper

2 bedroom maisonette for sale in Worthing Road, Horsham, RH12

Summary - 20 RIVER MEAD HORSHAM RH12 1SP

2 bed 1 bath Maisonette

**Standout Features:**
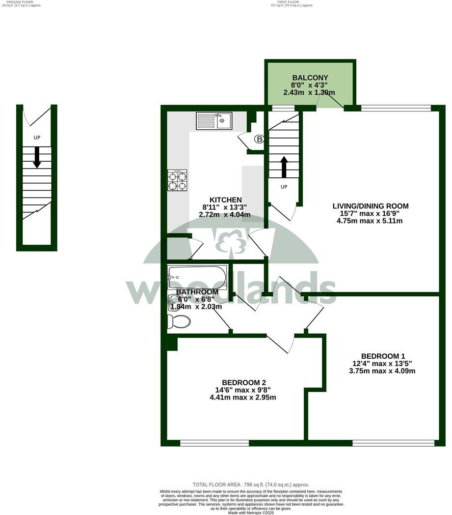
- Spacious two-bedroom first-floor maisonette
- Bright and airy living/dining room with a private balcony
- Well-appointed kitchen with integrated appliances
- Garage located in a nearby block
- Extended lease of 125 years on completion
- Central Horsham location, close to amenities
- No onward chain

This inviting two-bedroom maisonette in the heart of Horsham presents an excellent opportunity for first-time buyers, small families, or investors. Boasting a spacious living/dining room flooded with natural light, the home features a charming private balcony ideal for enjoying summer evenings. You'll appreciate the well-equipped kitchen with integrated appliances and a convenient breakfast bar. Both bedrooms are sizable, ensuring comfort and privacy.

With a garage in a nearby block and the added advantage of an extended lease upon completion, this residence combines practicality and potential. The property is located just a short stroll from local shops, bars, and restaurants, offering a vibrant town center living experience without sacrificing space—perfect for those looking to settle in a vibrant community. While there may be some maintenance considerations typical of properties from the 1960s, the home’s overall condition and layout present great value. Don’t miss this opportunity to own a piece of central Horsham with no onward chain!

Property Details

Brochure Descriptions

Image Descriptions

Floorplan Description

Rooms

Textual Property Features

Detected Visual Features

EPC Details

Nearby Schools

Nearest Bars And Restaurants

,,,,}

Nearest General Shops

,,}

Nearest Grocery shops

,,}

Nearest Supermarkets

,,}

Nearest Religious buildings

,,}

Nearest Medical buildings

,,,}

Nearest Airports

}

Nearest Leisure Facilities

,,,,}

Nearest Tourist attractions

,,}

Nearest Train stations

,,,,}

Nearest Bus stations and stops

,,,,}

Nearest Hotels

,,}

Tags

Local Market Stats

AirBnB Data

Similar Properties

Meta

High Res Images

Compatible Images

Low res Images

Thumbnails

Raw Images

High Res Floorplan Images

Compatible Floorplan Images

Low res Floorplan Images

FloorplanImages Thumbnail

Raw Floorplan Images