Chain-free modern home with garage and easy access to schools and walks.
- No onward chain, ready for quick completion
- Garage plus gated driveway for secure parking
- New mains gas boiler and radiators installed
- Private, low-maintenance rear garden with seating
- Bright living room and separate dining room
- Single family bathroom only; no ensuite
- Small plot and average internal space for three beds
- EPC C; Council Tax Band C
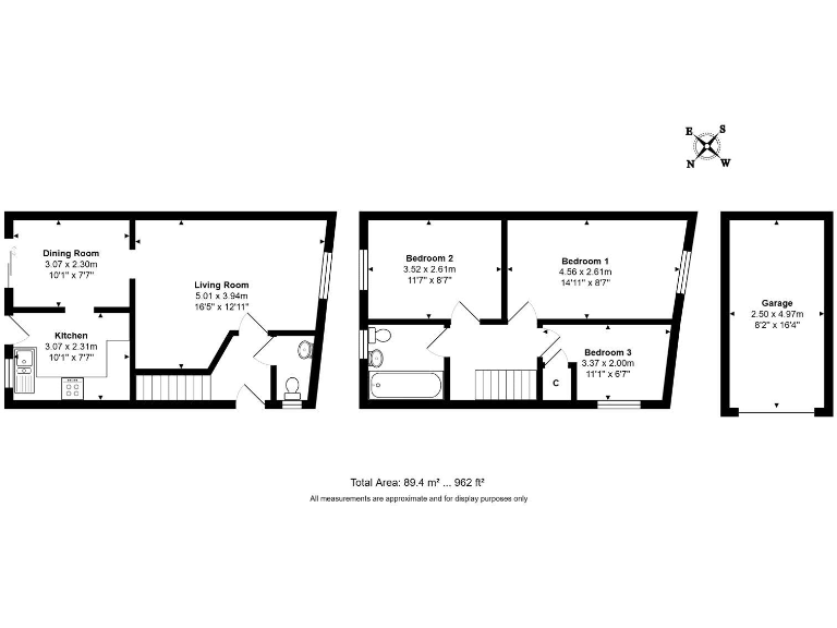
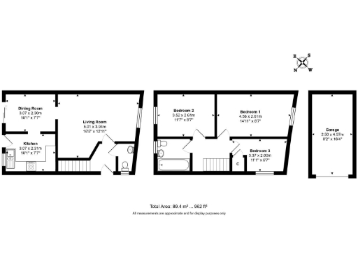
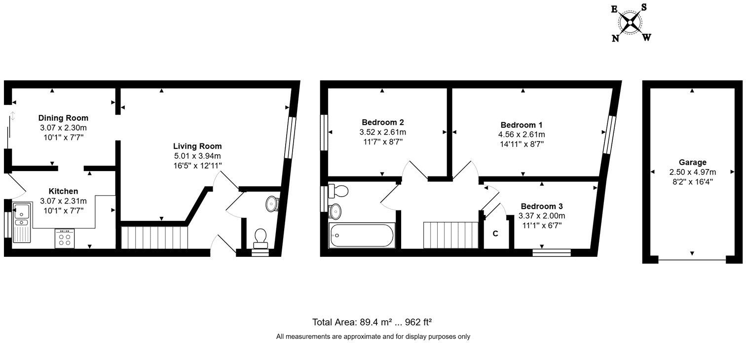
Tucked on a quiet corner in Devizes, this three-bedroom end-of-terrace is offered chain-free and ready for immediate occupation. Interiors are bright and neutral throughout, with a separate dining room, living room and a fitted kitchen arranged for easy family living. A new gas boiler and double glazing add practical reliability.
Outside, a gated driveway leads to a single garage, providing secure parking and useful storage or workshop space. The private rear garden is designed for low maintenance with artificial lawn and seating areas, ideal for busy families who prefer outdoor space without heavy upkeep. Paths to nearby green spaces and country walks are within minutes.
The layout and footprint are typical of a modern 1996–2002 build: efficient, average-sized rooms suitable for a small family or a buy-to-let investor. Note the property has one family bathroom only and a relatively small plot, which may feel limiting for households needing more outdoor space or additional bathrooms. EPC rating C and Council Tax Band C.
This location scores well for schooling, local amenities and excellent mobile and broadband connectivity. Overall, the house offers practical, low-maintenance living with scope to personalise the neutral finishes, positioned for easy access to both town facilities and nearby countryside.
3 bedroom detached house for sale in Leigh Woods Lane, Devizes, Wiltshire, SN10 — £385,000 • 3 bed • 2 bath • 1186 ft²
3 bedroom end of terrace house for sale in Devizes, Wiltshire, SN10 3UE, SN10 — £295,000 • 3 bed • 2 bath • 831 ft²
3 bedroom semi-detached house for sale in Greenfield Road, Devizes, Wiltshire, SN10 5BP, SN10 — £335,000 • 3 bed • 1 bath • 1230 ft²
3 bedroom semi-detached house for sale in Elm Tree Close, Devizes, Wiltshire, SN10 3ER, SN10 — £345,000 • 3 bed • 2 bath • 1115 ft²
3 bedroom terraced house for sale in Beechwood Close, Devizes, Wiltshire, SN10 — £265,000 • 3 bed • 1 bath • 960 ft²
3 bedroom terraced house for sale in Forty Acres Road, Devizes, SN10 — £260,000 • 3 bed • 1 bath • 1069 ft²










































































