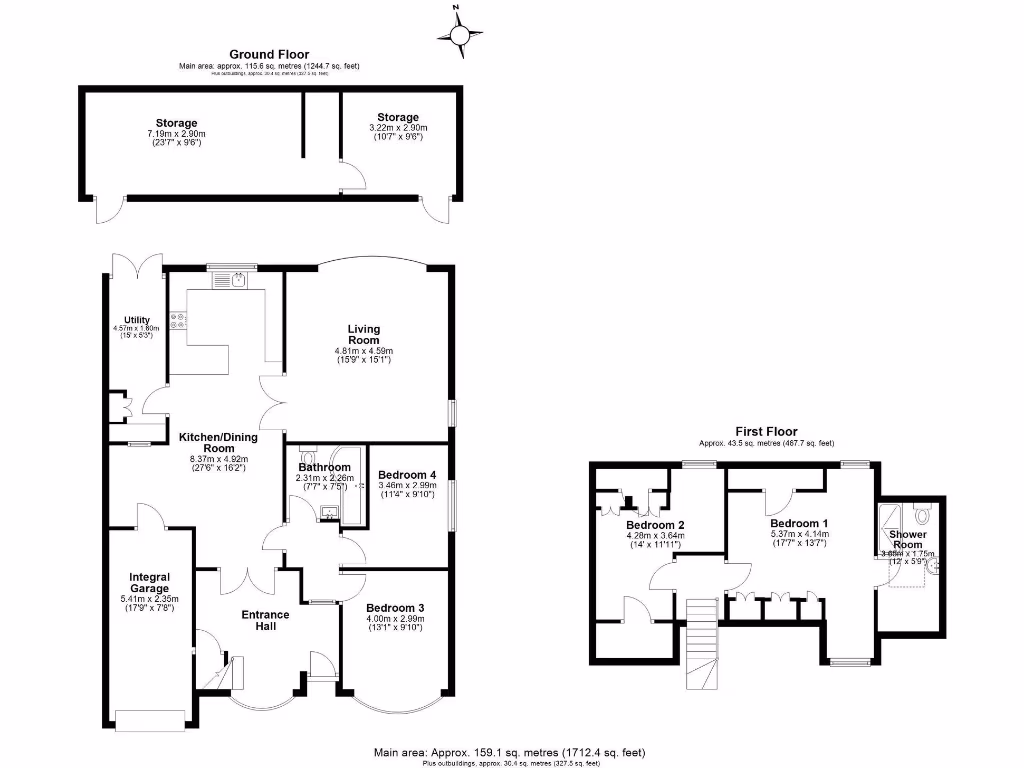
- Four-bedroom chalet bungalow with ensuite to principal bedroom
- Large gated driveway and internal garage/store providing secure parking
- Substantial garden with lawn, patio and separate outbuilding
- Kitchen with adjoining utility; practical family layout
- Chain free and good commuter links (M11, Epping Central Line nearby)
- Needs modernisation throughout; renovation works required
- Council tax level above average — factor ongoing costs
- Village setting with good-rated local primary and secondary schools
This spacious four-bedroom chalet bungalow on Vicarage Lane offers generous living space and a large, gated driveway in a sought-after CM16 village setting. The property sits on a sizeable plot with a lawn, patio and useful outbuilding — ideal for families who value outdoor space and storage. With easy access to the M11 and Epping Underground a short drive away, commuting is straightforward.
Inside, the layout includes a roomy entrance hall, ground-floor living areas, a contemporary-style kitchen with adjoining utility, and an internal garage/store. The principal bedroom on the first floor benefits from an ensuite shower room; three further bedrooms and a family bathroom complete the accommodation. The house is chain-free and ready for someone to stamp their own style on it.
Important to note: the property needs modernisation throughout. While many rooms have a neutral palette and the kitchen is described with contemporary features, updating and refurbishment will be required to fully realise the home’s potential. Buyers should factor renovation time and cost into their plans. Council tax is above average for the area.
This home will suit families seeking room to grow and outdoor space in a semi-rural village with good primary and secondary school options nearby. It will also appeal to buyers looking for a roomy freehold property with development potential who are prepared to carry out modernisation works.



















































































