Central location close to parks, transport and vibrant dining scenes.
Moments from Hyde Park and Queensway cafés and shops
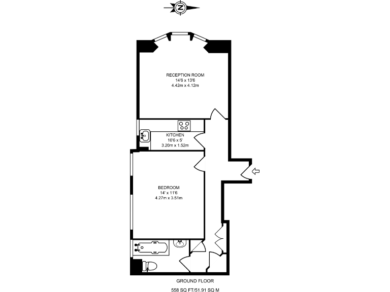
Generous reception room with parquet flooring and large windows
Contemporary fitted kitchen and comfortable double bedroom
558 sqft ground-floor mansion flat with period features
Lease 44 years remaining — mortgage and extension concerns
Service charge £6,200 pa; above-average ongoing costs
Community heating system; mains gas (community) supply
Local crime levels very high — factor security and insurance
Step into a bright one-bedroom ground-floor mansion flat moments from Hyde Park and the cafés of Queensway. The reception room is generously proportioned and benefits from large windows and parquet flooring, while the kitchen and bedroom present contemporary fittings and good natural light. The property suits someone seeking central living with classic period character and modern touches.
Practical considerations are significant: the lease has 44 years remaining, which may limit mortgage options and will likely require a lease extension. The service charge is above average, and the building is on a community heating scheme. Buyers should factor these costs and the potential expense of a lease extension into the long-term affordability.
Located for easy access to Bayswater and Queensway underground stations, this flat is well-placed for central London commutes, leisure and dining. The neighbourhood is an inner-city, multicultural area with fast broadband and excellent mobile signal, but local crime levels are very high—consider security and insurance implications.
For a first-time buyer prepared to manage lease and service-charge issues, this flat offers a rare central location, period charm and immediate move-in potential. It also presents clear refurbishment or investment upside with sensible works and a lease extension.
1 bedroom flat for sale in Princess Court, Queensway, W2 — £510,000 • 1 bed • 1 bath • 560 ft²
1 bedroom flat for sale in Porchester Gardens, Queensway, London, W2 — £450,000 • 1 bed • 1 bath • 387 ft²
1 bedroom flat for sale in Westbourne Terrace, Lancaster Gate, London, W2 — £500,000 • 1 bed • 1 bath • 482 ft²
1 bedroom flat for sale in Queensway, Queensway, London, W2 — £650,000 • 1 bed • 1 bath • 608 ft²
2 bedroom flat for sale in Queensway, Bayswater, London, W2 — £600,000 • 2 bed • 1 bath • 696 ft²
2 bedroom flat for sale in Queensway, Westbourne, W2 — £740,000 • 2 bed • 1 bath • 624 ft²






























































































































































































