High-spec freehold home near major transport and green spaces.
Freehold two-bedroom house with private outdoor space
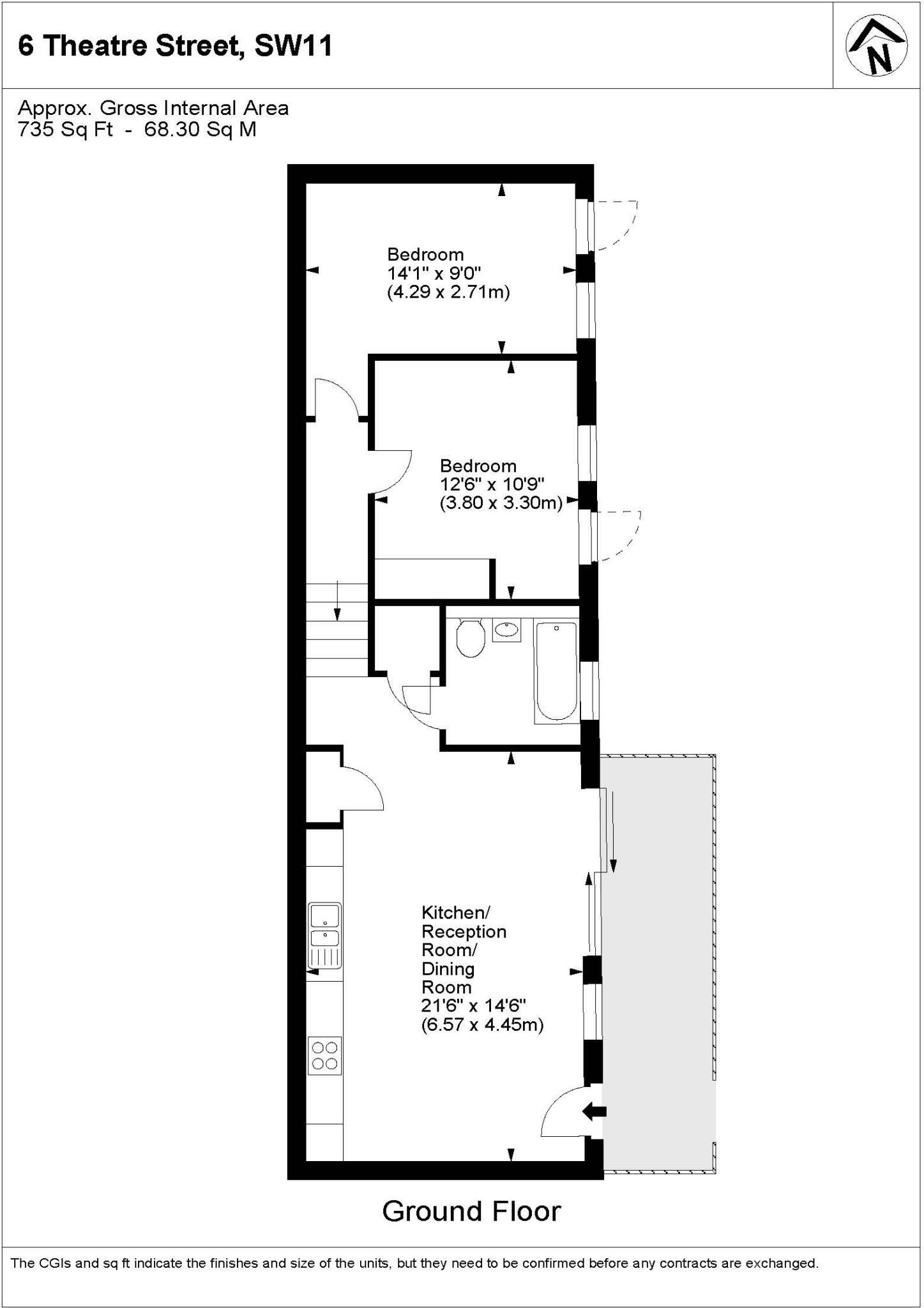
735 sq ft lateral living; open-plan kitchen and reception
10-year New Home Warranty for structural peace of mind
Completion Q2 2026 — property not yet occupied
0.4 miles to Clapham Junction; excellent transport links
One bathroom only — consider household routines or rental limits
Secure gated mews setting with contemporary high-spec finishes
Area records above-average crime rates — factor into decision
A contemporary two-bedroom freehold house in a boutique gated mews, offering lateral living across 735 sq ft with high-quality finishes and private outdoor space. Built in 2026 and covered by a 10-year New Home Warranty, the property suits buyers seeking low-maintenance modern living close to excellent transport links.
The open-plan reception and kitchen benefit from Crittall-style windows, skylights and exposed brick features that flood the home with light. At 0.4 miles from Clapham Junction, connections to Victoria, Waterloo and Gatwick are strong, and local green spaces, shops and cafes are within easy reach.
Practical considerations are clear: this is a new-build completion (Q2 2026) so the home will be ready in the future rather than immediately. The house has one bathroom for two bedrooms, which may influence family routines or rental flexibility. The development sits in an area with above-average crime statistics, an important factor for buyers to weigh when viewing.
Overall this is a polished, secure freehold mews house that will appeal to buyers prioritising modern specification, warranty-backed peace of mind and proximity to major transport hubs. It is best suited to those comfortable with new-build timelines and a single-bathroom layout.
2 bedroom flat for sale in Crombie Mews, SW11 2JB, SW11 — £750,000 • 2 bed • 2 bath • 962 ft²
1 bedroom house for sale in Flutemakers Mews, London, SW4 — £550,000 • 1 bed • 1 bath • 566 ft²
2 bedroom house for sale in Barnard Mews, Clapham Junction, SW11 — £700,000 • 2 bed • 2 bath • 926 ft²
3 bedroom mews property for sale in Takhar Mews, London, SW11 — £870,000 • 3 bed • 2 bath • 1063 ft²
2 bedroom house for sale in Flutemakers Mews, Clapham, SW4 — £900,000 • 2 bed • 2 bath • 1269 ft²
2 bedroom maisonette for sale in Vicarage Crescent, London, SW11 — £800,000 • 2 bed • 1 bath • 819 ft²


















