**Standout Features:**
- Prime location in Hayes Town
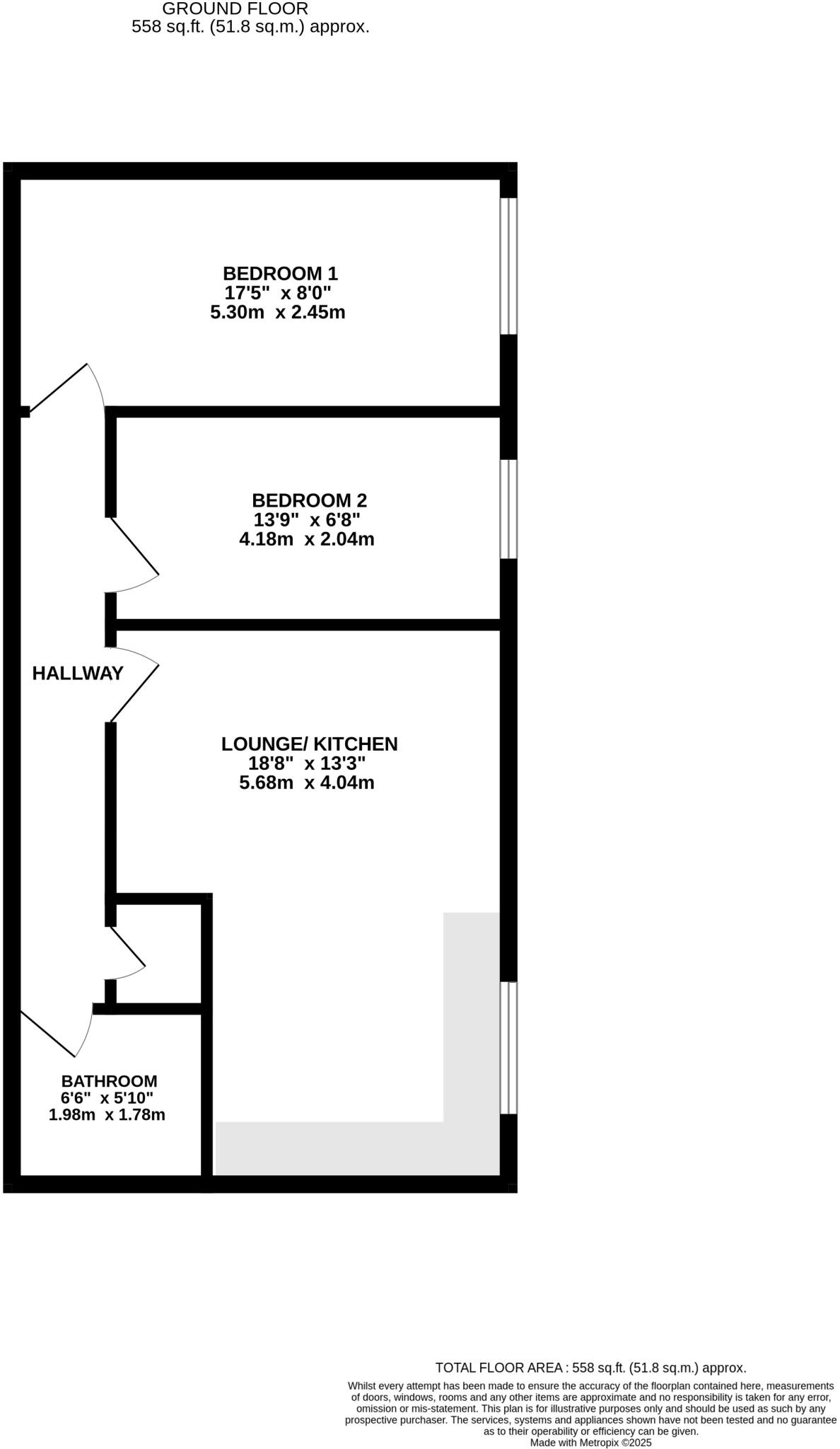
- Well-presented first-floor flat with modern open-plan design
- Spacious lounge and kitchen with contemporary finishes
- Two generously sized bedrooms
- Bright interiors with ample natural light
- Excellent transport links, moments from Hayes & Harlington Station
- Close to a variety of amenities and local schools
- Gas central heating and double-glazed windows
**Summary:**
Discover the perfect blend of modern comfort and convenience in this inviting first-floor apartment, ideally suited for first-time buyers or savvy investors. Offering open-plan living with a stylish kitchen and spacious lounge, the property effortlessly maximizes space and light, creating a welcoming atmosphere. With two well-sized bedrooms and a modern family bathroom, this home caters to a variety of lifestyles.
Situated in the heart of Hayes, just a stone's throw from Hayes & Harlington Station, you’ll enjoy swift access to London Paddington and Heathrow Airport, making your daily commute a breeze. Additionally, the vibrant local scene offers shops, sports facilities, and parks, ensuring you have all essentials within easy reach, complemented by numerous "Good" Ofsted-rated schools just around the corner.
Despite its many advantages, the flat is on the smaller side with limited insulation, which may require future considerations for warmth and energy efficiency. Priced at £260,000, this opportunity won't last long—imagine embracing a lifestyle filled with comfort and connectivity in this exclusive community!
2 bedroom apartment for sale in Cardinal Building, Station Approach, Hayes, Greater London, UB3 — £330,000 • 2 bed • 1 bath • 637 ft²
1 bedroom apartment for sale in Coldharbour Lane, Hayes, Greater London, UB3 — £170,000 • 1 bed • 1 bath • 517 ft²
2 bedroom flat for sale in Varcoe Gardens, Hayes, UB3 — £289,950 • 2 bed • 2 bath • 683 ft²
1 bedroom apartment for sale in Copthorne Mews, Hayes, UB3 — £195,000 • 1 bed • 1 bath • 330 ft²
1 bedroom flat for sale in Copthorne Mews, Hayes, UB3 — £190,000 • 1 bed • 1 bath • 322 ft²
2 bedroom apartment for sale in Old Station Road, Hayes, Middlesex, UB3 — £310,000 • 2 bed • 1 bath • 603 ft²






























