Compact freehold site in village centre with separate access available.
Approximately 0.183 acres (0.074 hectares) of freehold land
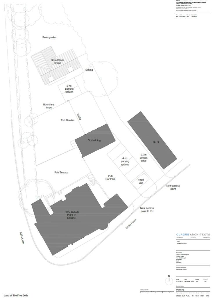
A compact freehold parcel of approximately 0.183 acres located to the rear of The Five Bells in Hoo. The gently sloping site is naturally bounded by hedges and trees, includes a single-storey brick outbuilding and benefits from existing rights of ingress and egress via the pub car park. It sits within the settlement boundary and is not in a conservation area or flood zone, making it a straightforward infill prospect (subject to planning).
The site is promoted for potential creation of one or two dwellings with separate access (STP). Its village location, good road links to the A228/A2/M2 and proximity to Rochester and Maidstone make it attractive to local developers or investors targeting small-scale residential schemes. Vacant possession will be provided and the land is offered for sale freehold.
Important practical notes: services have not been confirmed — all buyers must carry out their own utility enquiries. Planning is not guaranteed and any development will require the usual permissions. VAT may be chargeable and access is routed through the pub car park, which should be considered in layout and construction planning.
Land for sale in Station Road, Aylesford, Kent, ME20 — £1,400,000 • 1 bed • 1 bath
5 bedroom detached house for sale in Bells Lane, Hoo, ME3 — £800,000 • 5 bed • 4 bath • 1715 ft²
Land for sale in Grovehurst Cars Site, King Street (Off Gas Road), Sittingbourne, ME10 2QD, ME10 — £900,000 • 1 bed • 1 bath • 23958 ft²
5 bedroom detached house for sale in Main Road, Hoo St. Werburgh, Rochester ME3 9HP, ME3 — £575,000 • 5 bed • 2 bath • 1668 ft²
Storage facility for sale in Grovehurst Cars, King Street, Sittingbourne, Kent, ME10 — £900,000 • 1 bed • 1 bath • 23958 ft²
Land for sale in Maidstone Road, ME5 — £40,000 • 1 bed • 1 bath






















