Characterful starter cottage with garden, views and renovation potential.
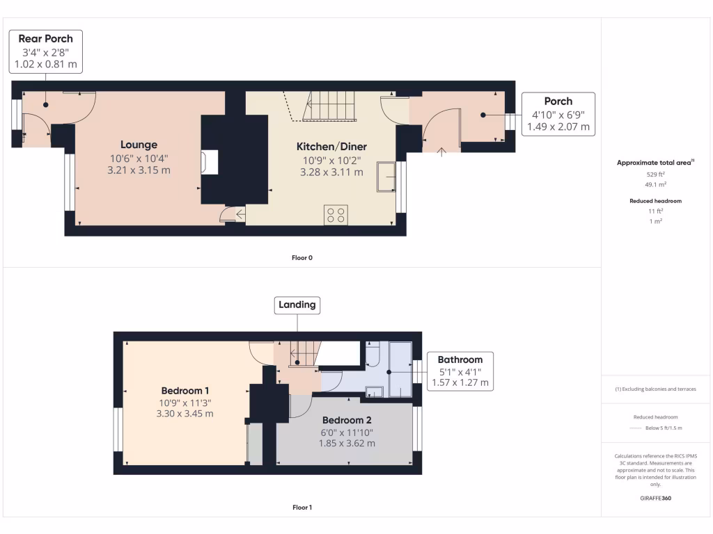
Two double-level bedrooms with valley views from the front bedroom|Pretty Cornish front garden with pond and flower beds|Small footprint ~581 sq ft; compact living spaces|Stone-built Victorian walls likely without insulation|Primary heating noted as electric/room heaters; boiler/gas point present — test required|Small enclosed rear courtyard; easy-maintenance outdoor space|No flood risk; low crime and excellent mobile signal|Area classified as deprived; local amenities and rail link nearby
A compact two-bedroom terraced cottage tucked into Gunnislake with period character and a pretty front garden. High ceilings and exposed stonework bring character to the sitting room, while the front bedroom enjoys elevated views across the Tamar Valley. The house is freehold and offered at an accessible price point for buyers seeking a small, traditional home close to local shops, rail links and AONB walking routes.
Practical drawbacks are straightforward: the house is small (approximately 581 sq ft) and sits on a small plot. Heating is described as electric / room heaters, and the stone walls are likely uninsulated — expect upgrading opportunities to improve comfort and running costs. There are mixed notes about gas points and a boiler in the rear porch; all services and appliances should be tested by buyers.
This property will suit first-time buyers wanting a characterful starter home, or buyers seeking a low-price countryside pied-à-terre with renovation potential. It is not a turnkey family house — budget for insulation, heating improvements and routine updating. The location, low crime rate, good mobile signal and fast broadband are useful modern advantages for remote working or commuting by rail to Plymouth.
3 bedroom terraced house for sale in Newbridge Hill, Gunnislake, Cornwall, PL18 — £240,000 • 3 bed • 1 bath • 983 ft²
2 bedroom end of terrace house for sale in Lower Tamar Terrace, Gunnislake, PL18 9LR, PL18 — £215,000 • 2 bed • 1 bath • 755 ft²
2 bedroom house for sale in Gunnislake, PL18 — £210,000 • 2 bed • 1 bath • 635 ft²
2 bedroom terraced house for sale in Commercial Street, Gunnislake, PL18 — £265,000 • 2 bed • 2 bath • 1208 ft²
3 bedroom terraced house for sale in Prospect Terrace, Gunnislake, Cornwall, PL18 9NB, PL18 — £265,000 • 3 bed • 1 bath • 1069 ft²
2 bedroom house for sale in Gunnislake, PL18 — £115,000 • 2 bed • 1 bath • 689 ft²






































