**Standout Features:**
- Immaculate condition
- Two spacious double bedrooms
- Bright and modern kitchen
- Stylish bathroom
- Private garage and additional off-street parking
- Chain-free sale
- Brand new boiler installed July 2025
- Average council tax costs
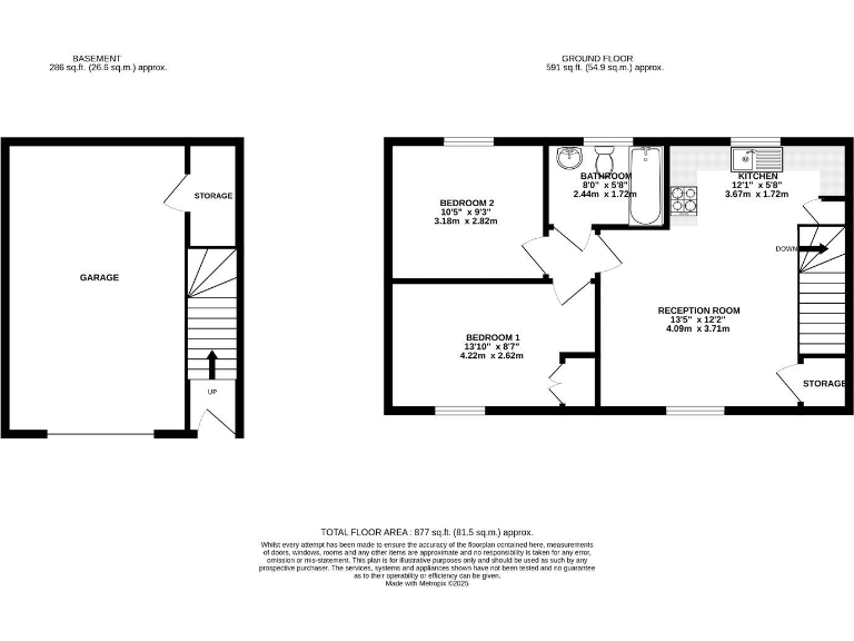
**Summary:**
Presenting an immaculate two double bedroom coach house nestled in the desirable Thistle Hill Development in Minster on Sea, this property epitomizes modern living perfect for first-time buyers or discerning investors. With its private entrance leading to an airy and spacious reception room adorned with natural light, plus a sleek contemporary kitchen, this home offers comfort and style.
Both generously sized bedrooms boast plush carpeting and neutral decor, ensuring a warm and inviting atmosphere. Enjoy the added luxury of off-street parking and a private garage, catering to convenience and security. The home’s turnkey appeal is enhanced by a brand new boiler, ready to support efficient living. While the property’s overall size is average for the area, it stands out for its well-maintained condition and stylish finish.
Situated in a peaceful cul-de-sac with easy access to local amenities, this residence is a delightful opportunity that balances modern comforts with a serene lifestyle. Don’t miss out—this charming coach house is ready for you to make it your home!
2 bedroom maisonette for sale in Hazel Avenue, Minster On Sea, Sheerness, ME12 3TT, ME12 — £200,000 • 2 bed • 1 bath • 680 ft²
2 bedroom terraced house for sale in Croft Avenue, Sittingbourne, Kent, ME10 — £220,000 • 2 bed • 1 bath • 784 ft²
2 bedroom coach house for sale in Bergamot Close, Sittingbourne, ME10 4EX, ME10 — £230,000 • 2 bed • 1 bath • 879 ft²
2 bedroom coach house for sale in Samuel Drive, Kemsley, Sittingbourne, Kent, ME10 — £190,000 • 2 bed • 1 bath • 6512 ft²
3 bedroom terraced house for sale in Thistle Walk, MInster, ME12 — £250,000 • 3 bed • 3 bath • 764 ft²
2 bedroom flat for sale in Laurel Road, Minster, ME12 — £165,000 • 2 bed • 2 bath • 323 ft²






































































