**Standout Features**
- Spacious three-bedroom ground-floor maisonette
- Easy access to Heathrow Airport and local motorway networks
- Private, secluded rear garden and off-street parking with garage
- Modern fitted kitchen and large lounge/diner with conservatory
- Long lease term
**Concerns**
- High crime rate in the area
- Overgrown garden requiring landscaping attention
- Local area has a classification of deprivation
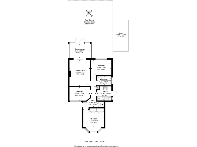
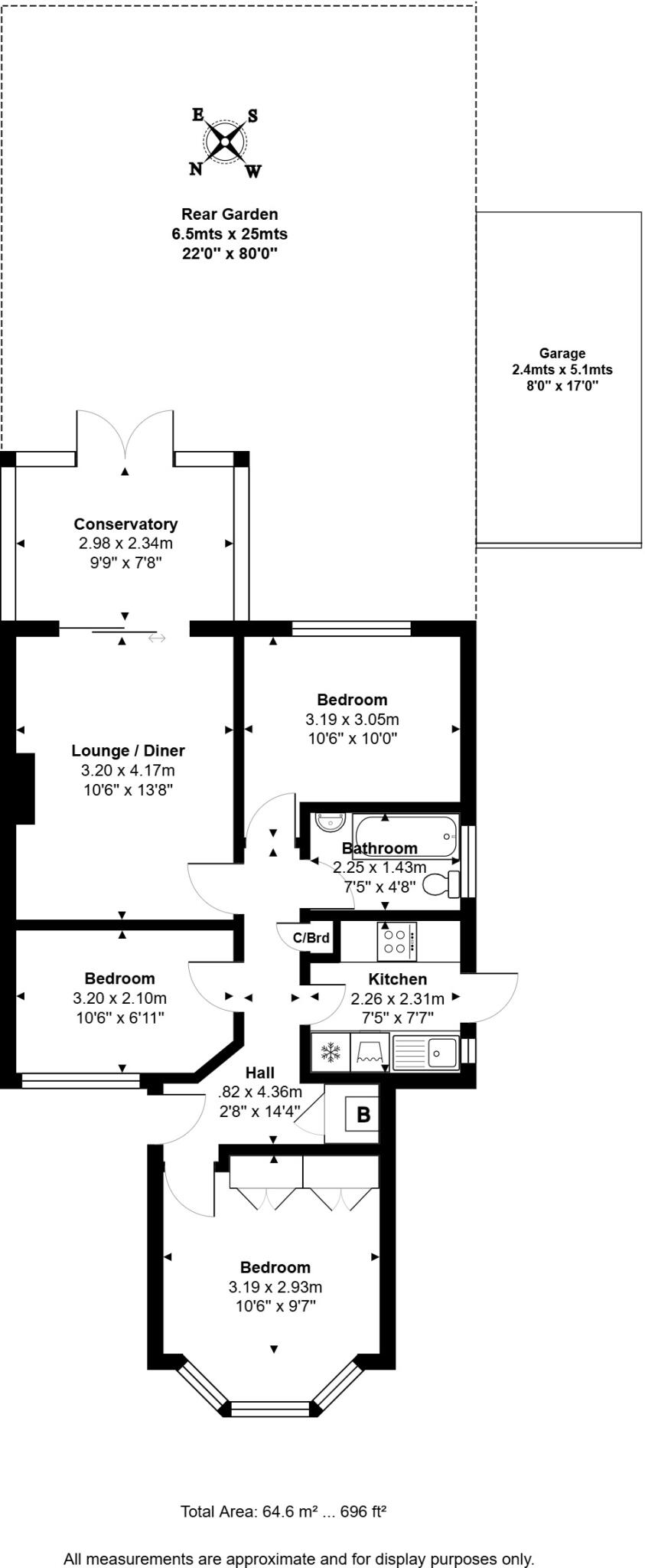
Discover this well-presented and spacious three-bedroom ground-floor maisonette, ideally situated along a sought-after road. Perfect for families and commuters alike, it offers easy access to local motorway networks and Heathrow Airport. The layout features a large lounge/diner that flows seamlessly into a bright conservatory, a modern fitted kitchen, and three well-proportioned bedrooms, all complemented by a white bathroom suite.
Step outside to enjoy the expansive private garden, perfect for children and pets, along with the convenience of off-street parking and a garage. While the area is classified as having a high crime rate and requires some landscaping to rejuvenate the outdoor space, the home's potential and proximity to schools with good Ofsted ratings make it an excellent opportunity. Whether you’re a first-time buyer or looking to invest, this property combines comfort and potential. Don’t miss out; viewings are highly recommended!
1 bedroom maisonette for sale in Whitley Close, Stanwell, Staines-upon-Thames, Surrey, TW19 — £195,000 • 1 bed • 1 bath • 500 ft²
3 bedroom semi-detached house for sale in Everest Road, Stanwell, STAINES-UPON-THAMES, TW19 — £550,000 • 3 bed • 1 bath • 1303 ft²
3 bedroom end of terrace house for sale in Hadfield Road, Stanwell, Staines-upon-Thames, Surrey, TW19 — £435,000 • 3 bed • 2 bath • 1067 ft²
1 bedroom maisonette for sale in Cleveland Park, Staines-upon-Thames, Surrey, TW19 — £225,000 • 1 bed • 1 bath • 386 ft²
2 bedroom maisonette for sale in Jordans Close, Stanwell, Surrey, TW19 — £315,000 • 2 bed • 1 bath • 800 ft²
2 bedroom maisonette for sale in Park Road, Stanwell, Staines-upon-Thames, TW19 — £325,000 • 2 bed • 1 bath • 807 ft²






































