**Standout Features:**
- Detached former Victorian chapel with unique architectural charm
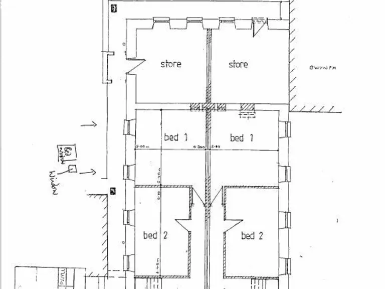
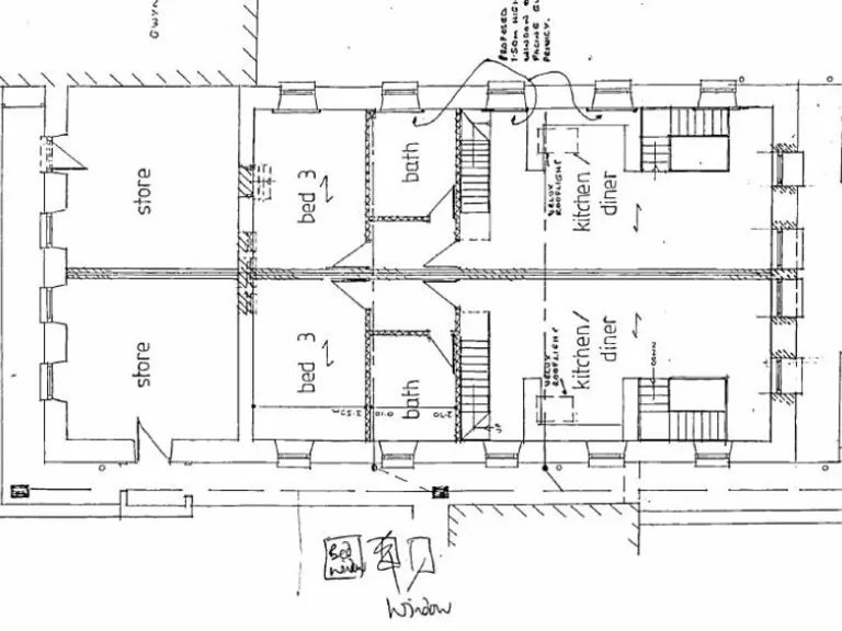
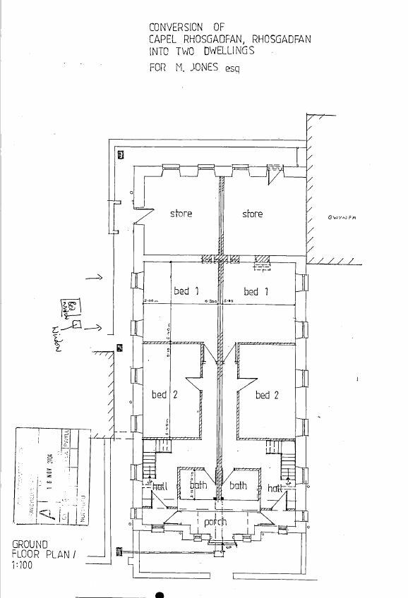
- Planning permission granted for conversion into two three-storey semi-detached homes
- Picturesque location with far-reaching coastal views
- Located in a popular, family-friendly rural village
- Close proximity to primary school and transport links
**Concerns:**
- Property in need of renovation and some disrepair
- Confirmation of works commenced in 2008 is pending
Nestled in the tranquil rural village of Rhosgadfan, this detached former Victorian chapel presents a rare development opportunity. With a stunning stone facade, arched windows, and the potential for conversion into two three-storey semi-detached homes, this property is ideal for investors or families looking to create a unique residence. Enjoy breathtaking coastal views and the peaceful ambiance of village life, with essential amenities including a primary school and transport links just a stone's throw away. 
While the building requires significant renovation and is currently in disrepair, the scale of this project offers a blank canvas for those eager to create their dream home or lucrative rental. With planning permission already in place since 2005, this opportunity won't last long in a sought-after area where community spirit flourishes. Don't miss the chance to transform this historic gem into a modern living space while enjoying the beauty of its rural surroundings. Act now to secure your future in this charming village retreat!
 Property for sale in Carmel, Caernarfon, Gwynedd, LL54 — £50,000 • 1 bed • 1 bath • 840 ft²
 Property for sale in Carmel, Caernarfon, Gwynedd, LL54 — £50,000 • 1 bed • 1 bath • 840 ft² 3 bedroom house for sale in Dinorwic, Caernarfon, Gwynedd, LL55 — £320,000 • 3 bed • 1 bath • 915 ft²
 3 bedroom house for sale in Dinorwic, Caernarfon, Gwynedd, LL55 — £320,000 • 3 bed • 1 bath • 915 ft² Property for sale in Waunfawr, Caernarfon, Gwynedd, LL55 — £45,000 • 1 bed • 1 bath • 1392 ft²
 Property for sale in Waunfawr, Caernarfon, Gwynedd, LL55 — £45,000 • 1 bed • 1 bath • 1392 ft² 3 bedroom detached house for sale in Carmel, Caernarfon, Gwynedd, LL54 — £365,000 • 3 bed • 2 bath
 3 bedroom detached house for sale in Carmel, Caernarfon, Gwynedd, LL54 — £365,000 • 3 bed • 2 bath 5 bedroom character property for sale in Fachwen, Fachwen nr Caernarfon, Gwynedd, LL55 — £725,000 • 5 bed • 3 bath • 3288 ft²
 5 bedroom character property for sale in Fachwen, Fachwen nr Caernarfon, Gwynedd, LL55 — £725,000 • 5 bed • 3 bath • 3288 ft² 4 bedroom house for sale in Gyrn Goch, Caernarfon, Gwynedd, LL54 — £360,000 • 4 bed • 2 bath • 2258 ft²
 4 bedroom house for sale in Gyrn Goch, Caernarfon, Gwynedd, LL54 — £360,000 • 4 bed • 2 bath • 2258 ft²


































































