Charming Victorian two-bedroom terrace with loft room and a large rear garden, minutes from Greenhithe station..
Victorian mid-terrace with period sash windows and fireplaces
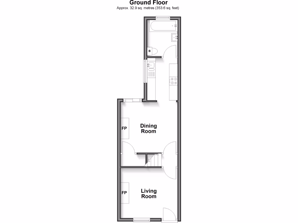
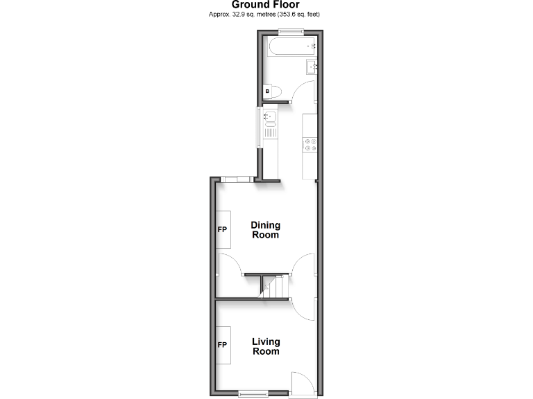
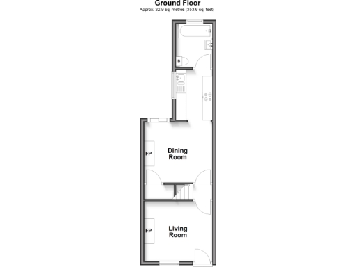
A compact Victorian mid-terrace with period character and practical living for first-time buyers. The house offers two reception rooms, two bedrooms and an extra loft room that works well as a home office or hobby space. The rear garden is a notable bonus for outdoor time and entertaining.
The location is a clear strength: about a five-minute walk to Greenhithe for Bluewater station, fast links to London, easy access to the A2/M25, and walking distance to Bluewater Shopping Centre and local amenities. Broadband and mobile signal are excellent and the area shows low crime and flood risk.
The property is freehold and modestly sized at about 862 sq ft. Constructed in the early 20th century, the house has solid brick walls (assumed no cavity insulation) and double glazing of unknown installation date — consider insulating walls and checking heating efficiency to reduce running costs. The kitchen is compact and there is a single family bathroom; buyers wanting more modern or open-plan arrangements should budget for upgrades.
Practical points: loft room use may require building-regulation checks if you plan to formalise it as a bedroom. Room sizes are modest but well laid out for a starter home. Overall this is a ready-to-move-into choice for buyers seeking commuter convenience, period detail and scope to improve energy performance over time.
2 bedroom terraced house for sale in Charles Street, Greenhithe, Kent, DA9 — £300,000 • 2 bed • 1 bath • 721 ft²
2 bedroom terraced house for sale in Knockhall Chase, Greenhithe, Kent, DA9 — £350,000 • 2 bed • 1 bath • 764 ft²
3 bedroom end of terrace house for sale in Charles Street, Greenhithe, Kent, DA9 — £325,000 • 3 bed • 1 bath • 789 ft²
2 bedroom terraced house for sale in Knockhall Road, Greenhithe, Kent, DA9 — £375,000 • 2 bed • 1 bath • 1023 ft²
3 bedroom terraced house for sale in Charles Street, Greenhithe, Kent, DA9 — £335,000 • 3 bed • 1 bath • 947 ft²
2 bedroom terraced house for sale in Coombe Road, Gravesend, Kent, DA12 — £300,000 • 2 bed • 1 bath • 537 ft²










































































