Renovated bungalow with planning approved garage conversion and large garden.
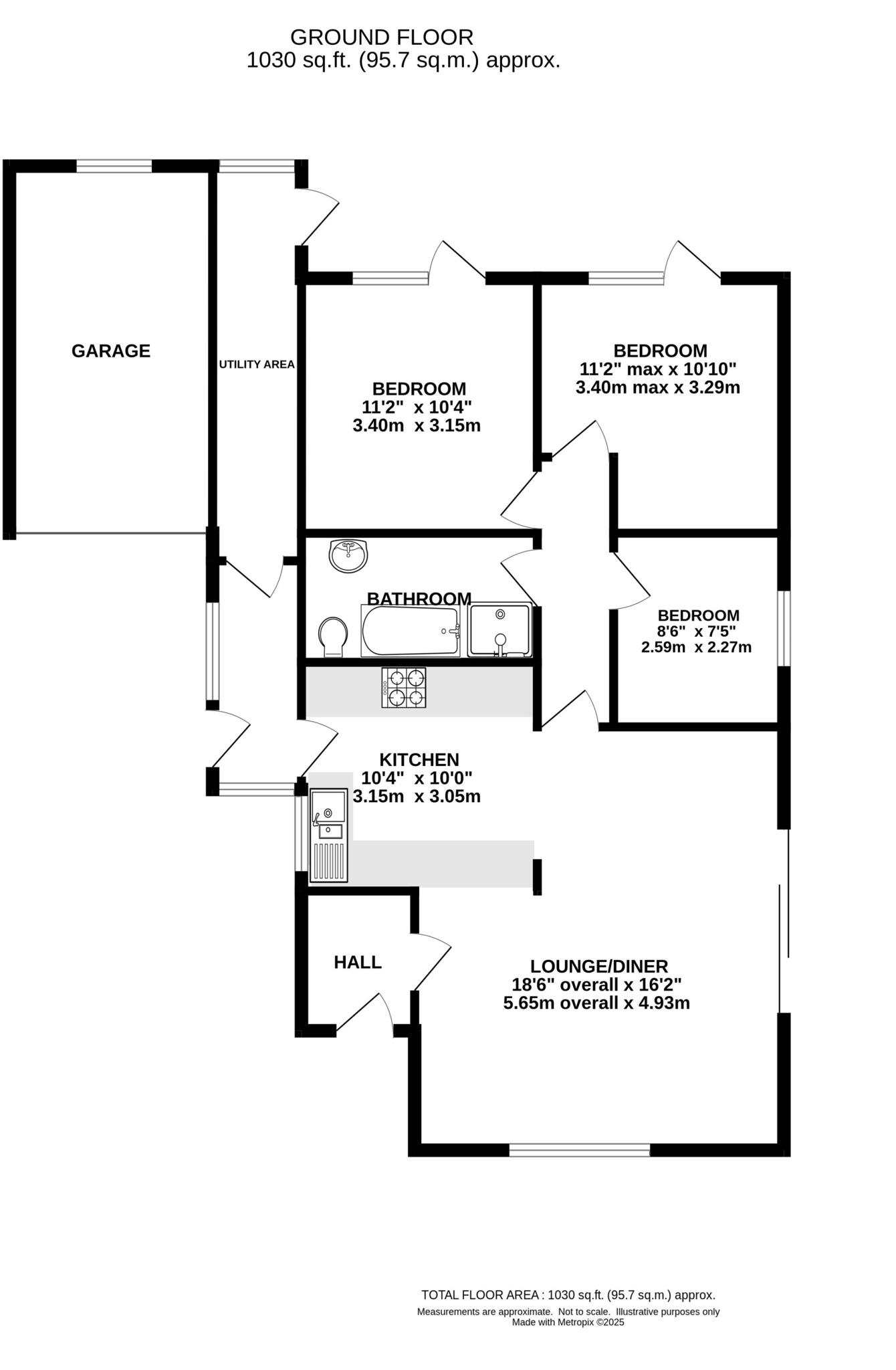
Three-bedroom detached single-storey bungalow on a large private plot
Set on a generous, private plot within an easy flat walk of Holmes Chapel village, this three-bedroom detached bungalow combines recent upgrades with scope for personalisation. The house has been substantially improved — new boiler, modern refitted kitchen with breakfast bar, full plumbing upgrade and vaulted living room insulation — creating a bright, open-plan living-dining-kitchen ideal for family life and entertaining.
Practical features include two driveways (ample off-street parking), a large timber workshop and planning approval to convert the garage and add a minor extension to create two additional rooms (ref 23/3566C). Two of the rear bedrooms have direct garden access, making the outdoor space effortless to use for children or pets. The plot is a major asset: private rear garden, gated access and potential to landscape a wrap-around garden off the second driveway.
Buyers should note a few material points: the property has had partial electrical upgrades only, there is a single bathroom serving three bedrooms, and the extensive garden is currently a blank canvas requiring landscaping to reach its full potential. The bungalow is newly renovated in many respects but still offers obvious opportunities to add finishing touches and customise interiors to personal taste.
This home suits families or downsizers seeking single-level living in a quiet, affluent town-fringe location with excellent schools nearby and fast broadband. With planning permission in place and a large plot, it also appeals to buyers wanting straightforward extension potential and long-term value uplift.
3 bedroom detached bungalow for sale in Ingleton Close, Holmes Chapel, CW4 — £375,000 • 3 bed • 1 bath • 961 ft²
3 bedroom bungalow for sale in Braemar Close, Holmes Chapel, Crewe, Cheshire, CW4 — £430,000 • 3 bed • 1 bath • 1147 ft²
3 bedroom detached bungalow for sale in Sproston Green, Sproston, CW4 — £895,000 • 3 bed • 2 bath • 2881 ft²
3 bedroom bungalow for sale in Elm Drive, Holmes Chapel, Crewe, Cheshire, CW4 — £380,000 • 3 bed • 2 bath • 979 ft²
3 bedroom detached bungalow for sale in Princess Road, Allostock, Knutsford, WA16 — £550,000 • 3 bed • 1 bath • 1429 ft²
2 bedroom detached bungalow for sale in Ravenscroft, Holmes Chapel, CW4 — £395,000 • 2 bed • 1 bath • 947 ft²






















































