Modern, low-maintenance one-bed close to beach and town amenities.
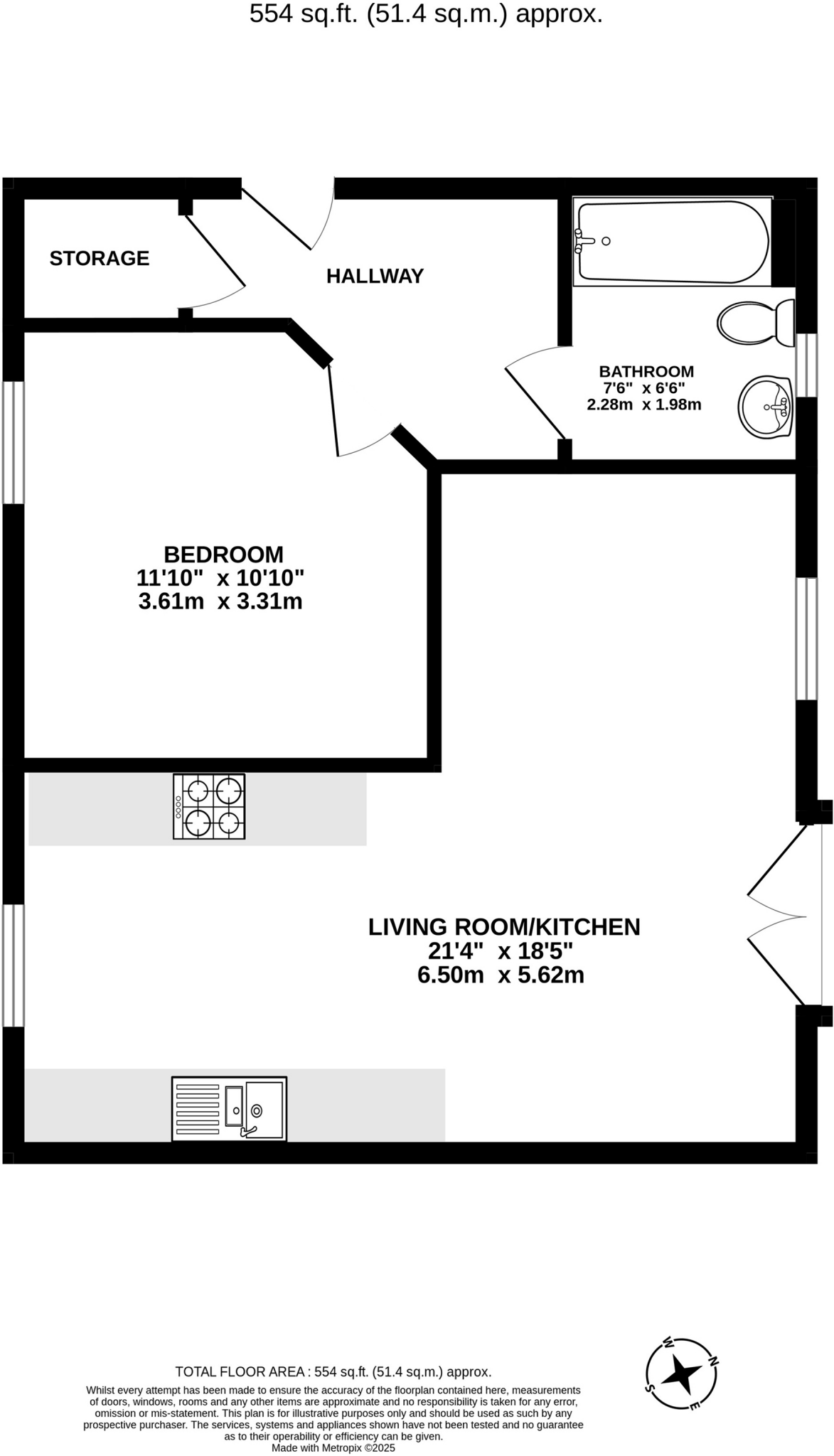
- Generously sized one-bedroom, approx. 554 sq ft
- Many apartments offer sea views across The Wash
- New build with energy-efficient construction standards
- Private gated parking with key fob access
- EV charging infrastructure and secure bicycle storage
- Communal central courtyard and modern open-plan living
- Freehold tenure; internal photos are show home only
- Local area: above-average crime; area classified as deprived
This newly built one-bedroom apartment in Hunstanton offers modern, low-maintenance coastal living with generous internal space and thoughtful communal amenities. Many apartments in the development boast sea views across The Wash and the development includes gated parking, EV charging and secure bicycle storage—useful for residents seeking convenience and reduced running costs.
Finished to a high specification, the property benefits from energy-efficient construction and a central courtyard that promotes a village-like community feel. The apartment is freehold and sits within a mixed-material façade inspired by local Victorian heritage, blending contemporary interiors with attractive external character.
Buyers should note local context: the wider area is classified as deprived and recorded crime levels are above average. Broadband speeds are average and council tax information is not provided. Internal photographs shown are of the show home; the specific apartment layout and exact fittings should be confirmed at viewing.
This home will suit downsizers or those wanting a coastal base who prioritise modern, low-upkeep living and easy access to town amenities and the beach. It also presents potential as a holiday or rental investment, subject to local demand and management of area considerations.
1 bedroom apartment for sale in Hunstanton, PE36 — £190,000 • 1 bed • 1 bath • 552 ft²
2 bedroom apartment for sale in Hunstanton, PE36 — £255,000 • 2 bed • 1 bath
2 bedroom apartment for sale in Hunstanton, PE36 — £280,000 • 2 bed • 1 bath • 748 ft²
3 bedroom apartment for sale in Hunstanton, PE36 — £350,000 • 3 bed • 2 bath • 964 ft²
2 bedroom apartment for sale in Seagate Road, Hunstanton, PE36 — £415,000 • 2 bed • 1 bath • 767 ft²
1 bedroom apartment for sale in Manor Road, Hunstanton, PE36 — £200,000 • 1 bed • 1 bath • 559 ft²






























































































