RG24 7DA - 8 bedroom detached house for sale in The Street, Old Basing…

View on Property Piper

8 bedroom detached house for sale in The Street, Old Basing, Hampshire, RG24

Summary - 99 THE STREET OLD BASING BASINGSTOKE RG24 7DA

8 bed 5 bath Detached

**Standout Features:**
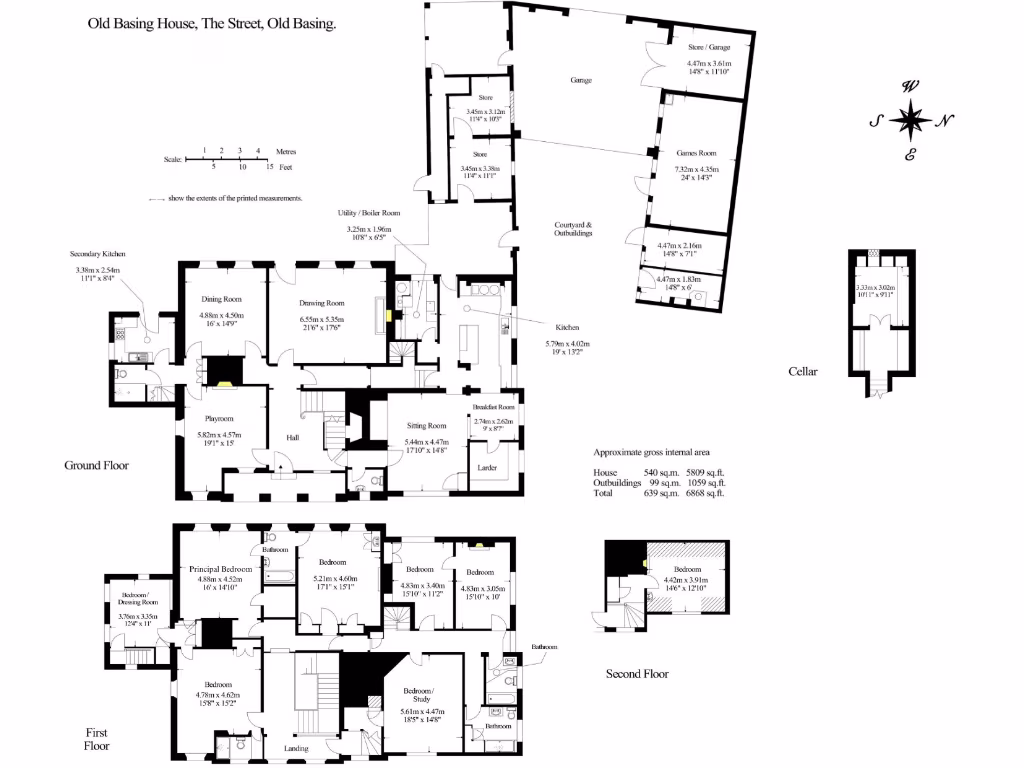
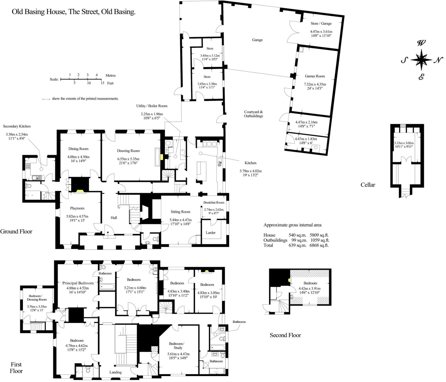
- **Spacious Layout:** 8 bedrooms, 5 bathrooms, 4 reception rooms across 6,868 sq ft.
- **Historic Charm:** Grade II listed Georgian property with period features.
- **Large Garden and Pool:** Private outdoor space with mature landscaping and swimming pool.
- **Versatile Outbuildings:** Includes games room, workshops, and garage.
- **Prime Location:** Situated in the affluent village of Old Basing, close to amenities and schools.

**Concise Summary:**
Old Basing House is a remarkable Georgian period property, offering a unique blend of historical elegance and modern versatility in the heart of Old Basing village. This expansive freehold home features 8 generous bedrooms and multiple reception areas, perfect for families and entertaining. Enjoy the mature gardens that encompass the home, which also includes a refreshing swimming pool and multiple outbuildings for recreational use or storage.

While the property boasts grandeur and charm, prospective buyers should be mindful of its Grade II listed status, which may pose challenges for certain renovations. Nevertheless, this property provides an exceptional opportunity to own a significant piece of history nestled within an affluent community, just a short distance from Basingstoke and excellent transport links to London. With such character and potential, Old Basing House is truly a rare gem that won’t remain on the market for long.

Property Details

Brochure Descriptions

Image Descriptions

Floorplan Description

Rooms

Textual Property Features

Detected Visual Features

EPC Details

Nearby Schools

Nearest Bars And Restaurants

,,,,}

Nearest General Shops

,,}

Nearest Grocery shops

,,}

Nearest Supermarkets

,,}

Nearest Religious buildings

,,}

Nearest Medical buildings

,,,}

Nearest Airports

}

Nearest Leisure Facilities

,,,,}

Nearest Tourist attractions

,,}

Nearest Train stations

,,,,}

Nearest Bus stations and stops

,,,,}

Nearest Hotels

,,}

Tags

Local Market Stats

Similar Properties

Meta

High Res Images

Compatible Images

Low res Images

Thumbnails

Raw Images

High Res Floorplan Images

Compatible Floorplan Images

Low res Floorplan Images

FloorplanImages Thumbnail

Raw Floorplan Images