Chain-free two-bed cottage with gated parking and village convenience..
- Chain-free two-bedroom terraced cottage in Oxton Village
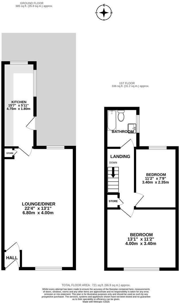
A centrally located two-bedroom terraced cottage in the heart of Oxton Village, offered chain-free with a secure gated parking space. The house (c.721 sq ft) delivers a bright open-plan living room that flows into a long kitchen, plus a generous main bedroom and first-floor bathroom — a straightforward layout for a couple or first-time buyers wanting village convenience.
This freehold property is solid-brick (circa 1900–1929) with double glazing and mains gas central heating. It presents clear potential to improve energy efficiency and modernise finishes; the walls are likely uninsulated, so buyers should budget for insulation or other improvements. The small private yard opens via a rear gate directly into the village centre.
Important practical points: the sale includes one parking bay in a communal gated lot (modest annual maintenance charge applies). Broadband speeds are fast and mobile signal is excellent. Council tax is low, but the immediate area records higher crime levels and is classed as very deprived — factors to weigh for comfort and resale considerations.
For buyers seeking a compact, characterful home within walking distance of shops, pubs and local amenities, this cottage offers a ready-to-live-in base with scope to add value through energy upgrades and cosmetic renovation. Viewing recommended to assess condition and potential.
2 bedroom terraced house for sale in Prices Lane, Prenton, Wirral, CH43 — £180,000 • 2 bed • 1 bath • 766 ft²
2 bedroom terraced house for sale in Newburns Lane, Oxton, CH43 — £250,000 • 2 bed • 1 bath • 871 ft²
2 bedroom terraced house for sale in Claughton Firs, Oxton, CH43 — £235,000 • 2 bed • 1 bath • 833 ft²
3 bedroom semi-detached house for sale in Claughton Firs, Oxton, Wirral, CH43 — £350,000 • 3 bed • 2 bath • 1127 ft²
3 bedroom terraced house for sale in Hughes Lane, Oxton, Wirral, CH43 — £400,000 • 3 bed • 1 bath • 1185 ft²
3 bedroom detached bungalow for sale in Gerald Road, Oxton, CH43 — £455,000 • 3 bed • 2 bath • 1255 ft²


























































