NW5 4DD - 1 bed ground floor onebedroom in Malden Road, NW5 4DD

View on Property Piper

1 bedroom flat for sale in Malden Road, Kentish Town, London, NW5

Summary - Malden Road, Kentish Town, London, NW5 NW5 4DD

1 bed 1 bath Flat

Affordable NW5 flat with garden — ideal for first-time buyers or investors ready to refurbish.
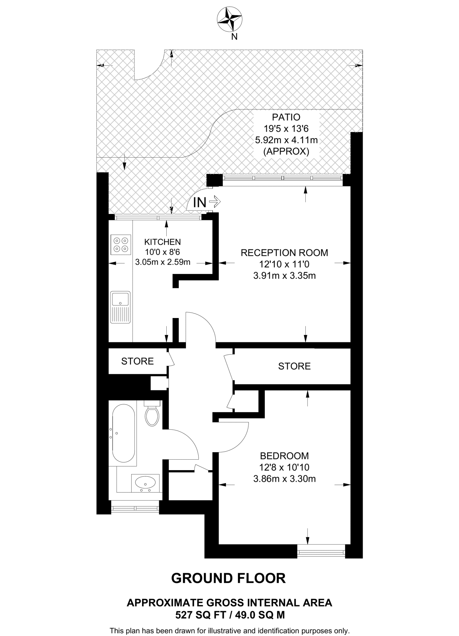
Ground-floor one-bedroom flat with private rear garden
Ground-floor one-bedroom flat with a private rear garden and a sunny reception room. The layout offers practical storage and a sizable bedroom, making it a comfortable starter home or a straightforward rental. The apartment sits in a 1980s mid-terrace block with double glazing (install date unknown) and community mains gas heating.

The property presents clear development potential: cosmetic refurbishment, new floors and bathroom/upgrades could significantly improve living quality and rental value. The rear yard is useable but overgrown and will need maintenance or landscaping to unlock its full appeal. Some rooms show wear and dated finishes, so buyers should budget for renovation work.

Important practical points: the flat is leasehold, on a community heating scheme, and located in an area with above-average crime and high deprivation. Its major positives include excellent mobile signal, fast broadband, and proximity to Chalk Farm and Kentish Town West stations and local amenities. This makes the property suitable for first-time buyers seeking an affordable entry into NW5, or investors targeting rental demand in a well-connected inner-city location.

Property Details

Image Descriptions

Floorplan Description

Rooms

Textual Property Features

Target Audience

AI Tags

Detected Visual Features

EPC Details

Nearby Schools

Nearest Bars And Restaurants

,,,,}

Nearest General Shops

,,}

Nearest Grocery shops

,,}

Nearest Supermarkets

,,}

Nearest Religious buildings

,,}

Nearest Medical buildings

,,,}

Nearest Airports

,}

Nearest Leisure Facilities

,,,,}

Nearest Tourist attractions

,,}

Nearest Train stations

,,,,}

Nearest Bus stations and stops

,,,,}

Nearest Hotels

,,}

Tags

Local Market Stats

AirBnB Data

Similar Properties

Meta

High Res Images

Compatible Images

Low res Images

Thumbnails

Raw Images

High Res Floorplan Images

Compatible Floorplan Images

Low res Floorplan Images

FloorplanImages Thumbnail

Raw Floorplan Images