RH12 3SR - 3 bedroom semidetached house for sale in Station Road, Warn…

View on Property Piper

3 bedroom semi-detached house for sale in Station Road, Warnham, RH12

Summary - 8 STATION ROAD WARNHAM HORSHAM RH12 3SR

3 bed 1 bath Semi-Detached

**Standout Features:**
- Beautifully presented and extended Victorian cottage
- 3 spacious bedrooms with period features
- Modernized large kitchen and magnificent conservatory
- Oil-fired central heating with antique-style radiators
- Garage and brick-built summerhouse in the garden
- Low crime rate in the peaceful village setting
- Excellent transport links via Warnham train station

**Overview:**
Elevate your lifestyle in this stunning extended Victorian cottage on the outskirts of Warnham village. Perfectly blending character and modernity, this home boasts three bedrooms adorned with original fireplaces, a spacious open-plan lounge/dining area featuring a cozy wood burner, and a large, light-filled conservatory opening to a beautifully landscaped garden. The extensive kitchen is designed for both functionality and aesthetic appeal, equipped with high-quality fixtures and a vaulted ceiling adorned with skylights.

Outside, you’ll find a charming garden complete with a decked terrace, perfect for serene mornings or entertaining guests, alongside a practical garage and secluded summerhouse ideal for hobbies or relaxation. While the property is fully modernized, its vintage charm persists, creating a warm and inviting atmosphere.

With Warnham train station just a short distance away, commuting to Horsham, Gatwick, and London is a breeze. This property not only offers a peaceful rural retreat but also exceptional potential, whether you're looking to settle down or invest. Seize the chance to make this cottage your dream home—properties like this don't come around often!

Property Details

Image Descriptions

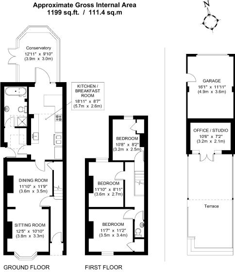
Floorplan Description

Rooms

Textual Property Features

Detected Visual Features

Nearby Schools

Nearest Bars And Restaurants

,,,,}

Nearest General Shops

,,}

Nearest Grocery shops

,,}

Nearest Supermarkets

,,}

Nearest Religious buildings

,,}

Nearest Medical buildings

,,,}

Nearest Airports

}

Nearest Leisure Facilities

,,,,}

Nearest Tourist attractions

,,}

Nearest Train stations

,,,,}

Nearest Bus stations and stops

,,,,}

Nearest Hotels

,,}

Tags

Local Market Stats

Meta

High Res Images

Compatible Images

Low res Images

Thumbnails

Raw Images

High Res Floorplan Images

Compatible Floorplan Images

Low res Floorplan Images

FloorplanImages Thumbnail

Raw Floorplan Images