Spacious modern family living near Newbury with energy-efficient finishes.
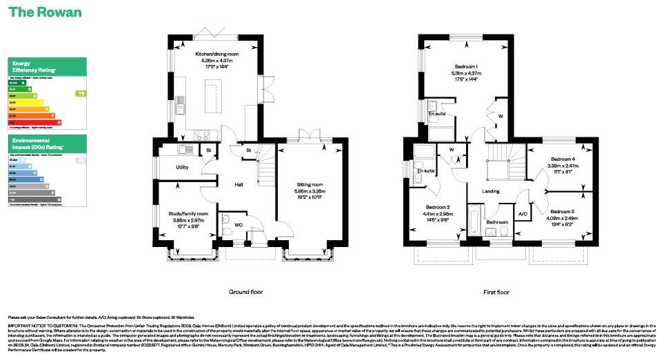
4 bedrooms, principal and second bedroom with en suites and fitted wardrobes
Open-plan kitchen/dining/family room with integrated appliances and patio doors
Separate study, utility room, downstairs WC and generous storage
Single garage plus off-street parking; rear garden for family use
10-year NHBC warranty; built by award-winning developer CALA Homes
Estimated occupation Q4 2025 — new build, not immediately available
Estate charge circa £286pa; council tax band to be confirmed by authority
Images may show upgrades not included as standard — additional costs possible
This is a new-build four-bedroom detached home designed for modern family life, set at Knights Grove on the edge of Newbury. The Rowan offers an open-plan kitchen/dining/family room with integrated appliances, a separate study, utility, and a single garage — practical spaces for daily routines and home working. Natural light and patio doors connect living areas to the rear garden, making indoor-outdoor living straightforward for family time and entertaining.
Built by CALA Homes and covered by a 10-year NHBC warranty, the property aims for low-maintenance, energy-efficient living. Bedrooms one and two include fitted wardrobes and en suites, with two further bedrooms and a family bathroom upstairs. The home is freehold and has no identified flood risk; the plot size and internal area are average for this house type (approximately 1,622 sq ft).
Buyers should note this is a new-build due for occupation in Q4 2025, so the home may include promotional incentives such as a stamp duty contribution or part-exchange options at reservation. Images used are of previous show homes and may show upgrades or finishes not included as standard; additional specification choices will incur extra cost.
Practical considerations: there is an annual estate charge (circa £286) and the local authority will determine the council tax band. This location benefits from very low crime, fast broadband, strong mobile signal and easy access to Newbury’s schools, countryside and transport links — suiting families seeking a semi-rural, commuter-friendly base.
5 bedroom detached house for sale in Plot 7 Knights Grove, Newbury, Berkshire, RG18 — £995,000 • 5 bed • 3 bath • 2215 ft²
5 bedroom detached house for sale in Plot 7 Knights Grove, Newbury, Berkshire, RG18 — £985,000 • 5 bed • 3 bath • 2215 ft²
5 bedroom detached house for sale in The Yew, Knights Grove, Stoney Lane, Berkshire, RG18 — £995,000 • 5 bed • 3 bath • 2293 ft²
3 bedroom semi-detached house for sale in Knights Grove, Coley Farm, Stoney Lane, Ashmore Green, Thatcham, Berkshire, RG18 — £532,000 • 3 bed • 2 bath • 1089 ft²
3 bedroom detached house for sale in Knights Grove, Ashmore Green, Berkshire, RG18 — £550,000 • 3 bed • 2 bath • 1085 ft²
4 bedroom detached house for sale in Knights Grove,
Upper Stone Rise (off Stoney Lane), Ashmore Green, Newbury,
RG18 9HG, RG18 — £810,000 • 4 bed • 1 bath • 589 ft²










































































