Two-bedroom freehold close to Sutton Coldfield shops and stations.
Freehold two-bedroom end-terrace with no upward chain
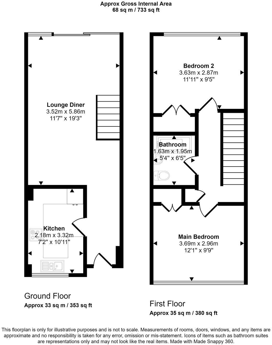
A tidy two-bedroom end-terrace offered freehold and ready for immediate occupation with no upward chain. The home combines a long living/dining room and contemporary kitchen on the ground floor with two double bedrooms and a bathroom upstairs — an appealing, compact layout for first-time buyers or downsizers.
Practical benefits include a private front garden, a single garage and large communal lawns to the rear, plus excellent local links: it's a short walk to Sutton Coldfield and Boldmere high streets, two nearby train stations and Sutton Park. Local schools are highly rated and everyday amenities are within easy reach.
There are a few important considerations: the property was built in the late 1960s and the cavity walls are assumed uninsulated, which may affect heating costs long-term. Double glazing is older (pre-2002) and there are signs of potential damp externally that should be inspected. A modest communal maintenance charge is payable in two instalments of £100 per year.
For a buyer seeking house ownership at an apartment price point, this presents clear value — garage, gardens and a freehold title in a very desirable Sutton Coldfield location. Budget for potential energy-efficiency upgrades and a damp inspection if you want to avoid surprise maintenance costs.
2 bedroom terraced house for sale in Buckingham Mews, Sutton Coldfield, West Midlands, B73 — £230,000 • 2 bed • 1 bath • 741 ft²
2 bedroom terraced house for sale in Buckingham Mews, Sutton Coldfield, B73 — £230,000 • 2 bed • 1 bath • 711 ft²
2 bedroom terraced house for sale in Lyndon Road, Sutton Coldfield, B73 — £325,000 • 2 bed • 1 bath • 765 ft²
2 bedroom terraced house for sale in Wilson Drive, Sutton Coldfield, B75 — £190,000 • 2 bed • 1 bath • 765 ft²
2 bedroom terraced house for sale in Coles Lane, Sutton Coldfield, B72 — £260,000 • 2 bed • 2 bath • 840 ft²
2 bedroom terraced house for sale in Coles Lane, Sutton Coldfield, B72 — £240,000 • 2 bed • 1 bath • 732 ft²


















































































