No onward chain; immediate vacant possession possible
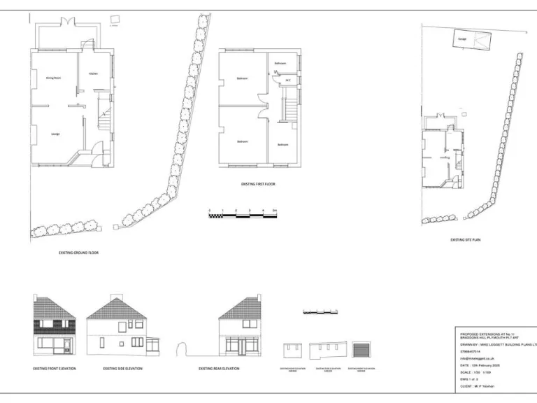
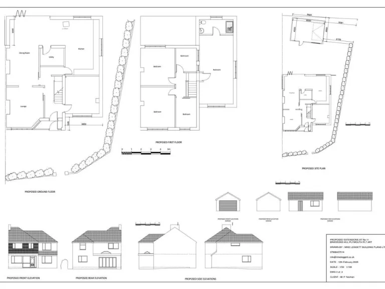
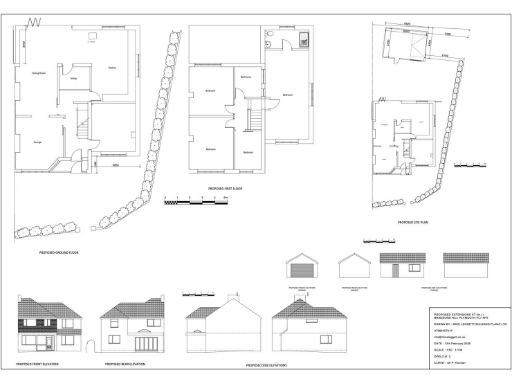
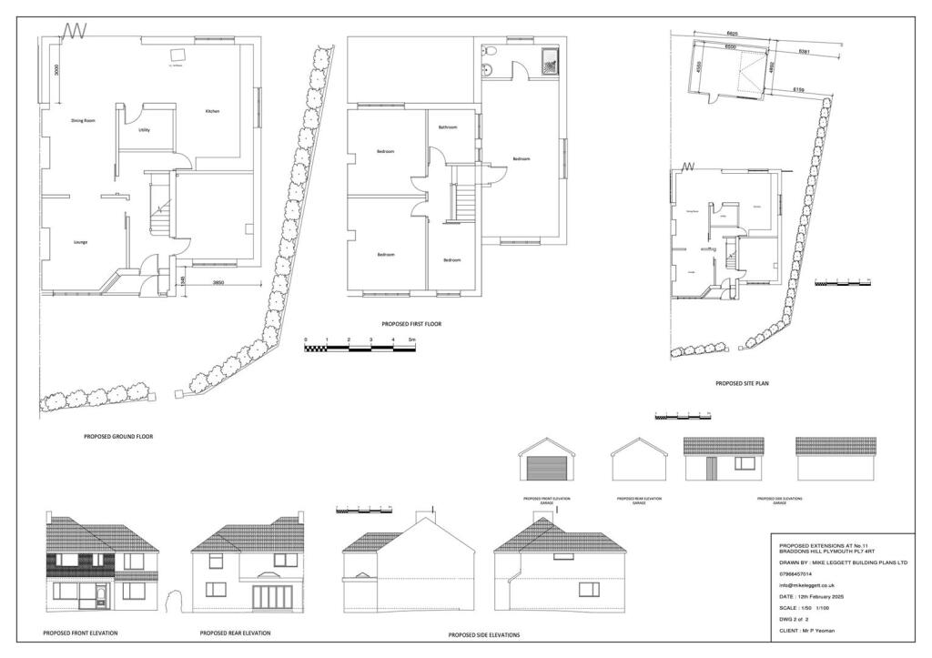
Planning permission granted (Ref: 25/00497/FUL) for multiple extensions
Generous wrap‑around, west‑facing garden on a corner plot
Lounge, dining room, conservatory — flexible family living space
Garage and driveway provide single off‑road parking; garage has manual roller door
Main house mostly double glazed; garage windows single glazed
Cavity walls as built, assumed uninsulated — likely energy upgrades needed
Mid‑century fixtures and fittings; cosmetic updating required in places
Set on a generous corner plot in popular Woodford, this chain‑free semi-detached home offers immediate family living with strong extension potential. The house currently provides a traditional layout: lounge with bay window, separate dining room, kitchen, conservatory and three double bedrooms, plus a bathroom and separate WC. A west-facing wrap‑around garden and single garage complete the picture.
Planning permission (Ref: 25/00497/FUL) has already been granted for multiple extensions, creating a clear route to increase living space and value. The garage and driveway provide convenient off‑road parking and the property sits within walking distance of primary schools, a park and local amenities—practical for everyday family life.
The home is largely original mid‑20th century construction and will benefit from updating in places. The boiler and radiators are mains gas; windows are uPVC double glazed in the main house, but the garage has single‑glazed windows. Cavity walls are as built and assumed to lack insulation, so buyers should factor in potential energy-efficiency improvements.
This is well suited to a family seeking a comfortable home now with scope to extend and modernise later. The no‑onward‑chain position and granted planning permission make it a straightforward project for buyers wanting to add space and long‑term value.
3 bedroom semi-detached house for sale in Amados Drive, Plymouth, PL7 — £279,950 • 3 bed • 1 bath • 753 ft²
3 bedroom semi-detached house for sale in Plympton, Plymouth, PL7 — £260,000 • 3 bed • 1 bath • 991 ft²
House for sale in Jubilee Road, Plymouth, PL5 — £229,950 • 1 bed • 3 bath • 894 ft²
3 bedroom detached bungalow for sale in Plympton, Plymouth, PL7 — £370,000 • 3 bed • 2 bath • 1206 ft²
3 bedroom semi-detached house for sale in Woodford Avenue, Plymouth, PL7 — £290,000 • 3 bed • 2 bath • 1066 ft²
3 bedroom semi-detached house for sale in Plympton, Plymouth, PL7 — £300,000 • 3 bed • 1 bath • 1270 ft²


































































































