Quiet plot with garage and conservatory, ideal for family living.
Large corner plot with mature private rear garden
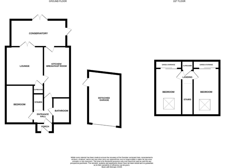
This semi‑detached dormer bungalow sits on a large corner plot in a quiet cul‑de‑sac, offering single‑storey living with two further bedrooms upstairs. The property’s 17ft conservatory and mature private rear garden are standout features for those who enjoy outdoor space and entertaining. A detached garage and generous driveway provide useful parking and storage that many similar homes lack.
Internally the accommodation is practical and well laid out: a 15ft fitted kitchen, living room, ground‑floor bedroom and quality fitted bathroom, with two bedrooms in the roof space. The home has UPVC double glazing, gas central heating and is freehold with a low council tax band — attractive running costs for families or downsizers. The footprint is modest (around 765 sqft) but the plot gives scope to extend or adapt subject to planning consent.
Buyers should note the property’s overall internal size is small for three bedrooms and there is a single bathroom. Some modernisation would refresh fixtures and finishes to contemporary tastes, and purchasers must satisfy themselves on services and measurements. Viewing is recommended to appreciate the garden, corner plot and layout.
Well suited to a family seeking convenient, single‑storey living with garden space, or to an investor wanting a rentable property in a settled small‑town location. The combination of plot, parking and conservatory creates immediate lifestyle appeal while offering potential to add value through updating or extension (subject to consents).
4 bedroom detached bungalow for sale in Hatfield Drive, Seghill, Cramlington, NE23 — £420,000 • 4 bed • 2 bath • 1073 ft²
3 bedroom detached bungalow for sale in Hatfield Drive, Seghill, Cramlington, NE23 — £330,000 • 3 bed • 1 bath • 969 ft²
2 bedroom bungalow for sale in Porchester Drive, Eastfield Chase, Cramlington, NE23 — £265,000 • 2 bed • 1 bath • 741 ft²
3 bedroom detached bungalow for sale in Olive Grove, Seghill, Cramlington, NE23 — £400,000 • 3 bed • 2 bath • 1604 ft²
3 bedroom bungalow for sale in Gretna Road, Fenham, Newcastle Upon Tyne, NE15 — £325,000 • 3 bed • 4 bath
3 bedroom semi-detached house for sale in Collywell Bay Road, Seaton Sluice, Whitley Bay, Northumberland, NE26 4RG, NE26 — £330,000 • 3 bed • 1 bath










































































