Characterful three-bed terrace with garage, driveway and sectioned garden.
Victorian mid-terrace with sash windows and cottage character
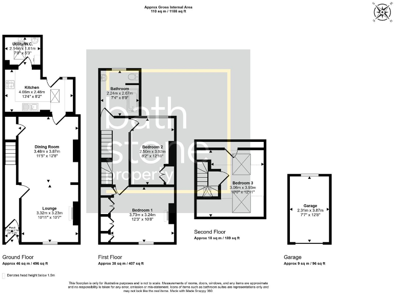
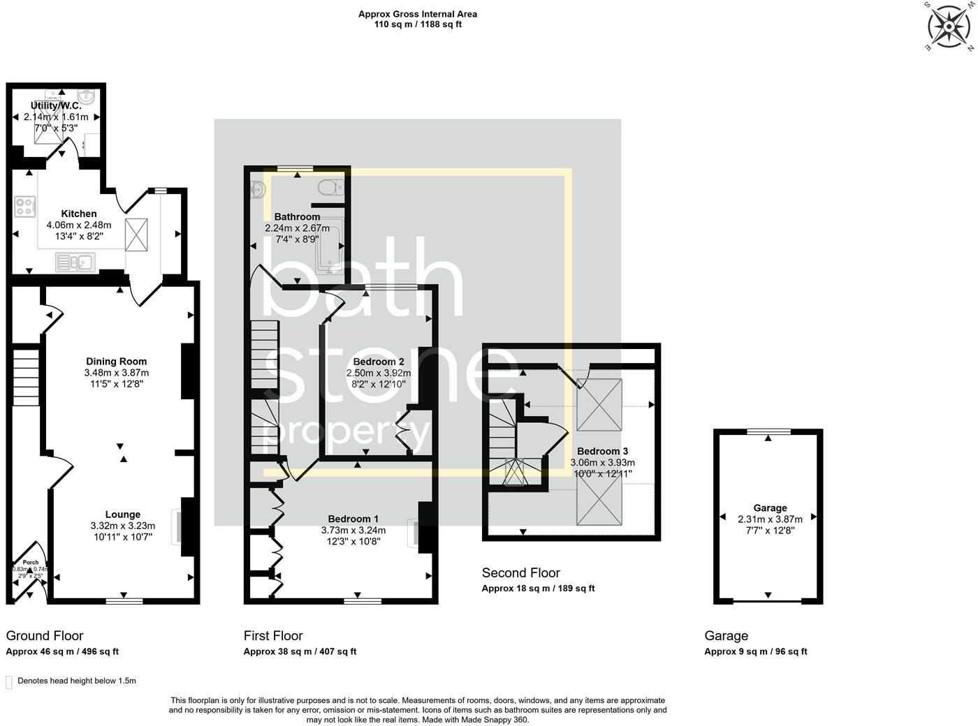
Set in a peaceful pocket of Peasedown St. John, this three-bedroom mid-terrace blends Victorian character with practical family living. Sash windows, stripped wood floors and a log burner create a cosy cottage atmosphere, while a recently upgraded garage with electric roller door and driveway provide welcome off-street parking.
The accommodation is arranged over three levels: an open-plan lounge and dining area with countryside outlooks, a kitchen with adjoining utility and ground-floor WC, two first-floor bedrooms and family bathroom, and a bright third-floor attic bedroom with twin Velux windows. The garden is thoughtfully sectioned with patio and lawn areas, giving usable outdoor space for children and pets.
Practical strengths include freehold tenure, mains gas central heating, double glazing and fast broadband in a low-crime, affluent area. The location offers village amenities, good primary and secondary schools rated 'Good', and straightforward access to Bath via nearby road links and park-and-ride.
Buyers should note the property sits on a small plot and is a solid-brick Victorian build with no evident wall insulation (typical of age). There is a single family bathroom only, and the house is average-sized internally — suitable for families seeking character rather than large modern floorplans. Overall, it’s a well-presented cottage-style home with sensible parking and garden space in a desirable village setting.
3 bedroom end of terrace house for sale in Heritage Close, Peasedown St John, Bath, BA2 — £315,000 • 3 bed • 1 bath • 783 ft²
3 bedroom detached house for sale in Ashgrove, Peasedown St John, BA2 — £470,000 • 3 bed • 1 bath • 1160 ft²
3 bedroom terraced house for sale in Braysdown Lane, Peasedown St John, BA2 — £325,000 • 3 bed • 1 bath • 1226 ft²
3 bedroom terraced house for sale in Frederick Avenue, Peasedown St John Nr.Bath, BA2 — £255,000 • 3 bed • 1 bath • 688 ft²
3 bedroom end of terrace house for sale in Hillside View, Peasedown St John, BA2 — £325,000 • 3 bed • 1 bath • 1060 ft²
3 bedroom detached house for sale in Underleaf Way, Peasedown St. John, Bath, BA2 — £365,000 • 3 bed • 3 bath • 1119 ft²






















































































































































