**Standout Features:**
- Grade II Listed farmhouse showcasing period charm and modern amenities.
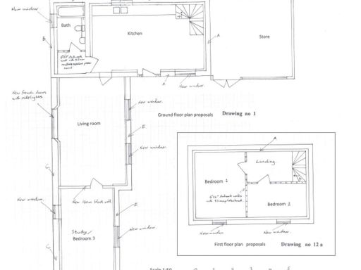
- Four beautifully designed reception rooms, including a snug and a dual-aspect sitting room.
- Five spacious bedrooms, including a quirky mezzanine and versatile attic rooms.
- Two traditional barns with planning consent for conversion into an annexe or holiday let.
- Eco-friendly ground source heating and luxurious underfloor heating in the kitchen.
- Expansive grounds of approximately half an acre, featuring a mature orchard and south-facing terrace.
- Convenient location near local amenities and scenic walks in Tyrells Wood.
**Summary:**
Nestled down a private lane and surrounded by the picturesque Norfolk countryside, Crow Green Farmhouse is an exquisite Grade II Listed property blending timeless elegance with sympathetic renovations. With a generous layout of five bedrooms and multiple flexible reception rooms, this home caters to various lifestyles, making it ideal for families or those seeking rural retreats.
The heart of the home features a traditional kitchen complete with a walk-in pantry, and state-of-the-art underfloor heating for cozy comfort. The adjoining barns present a unique opportunity for entertaining and future investment, with consent to create a self-contained annexe or holiday let that could serve as rental income or guest accommodation.
Set on nearly half an acre, the grounds include a delightful orchard, perfect for summer gatherings, alongside ample parking. With the tranquility of rural life yet close proximity to Long Stratton's conveniences, this property offers a perfect balance of seclusion and accessibility.
Prospective buyers can see the potential for further enhancements and personalized touches, making this a rare opportunity not to miss. Embrace a lifestyle of comfort, charm, and endless exploration in this captivating farmhouse.
5 bedroom farm house for sale in Short Green, Winfarthing, IP22 — £600,000 • 5 bed • 3 bath • 2949 ft²
5 bedroom detached house for sale in Honingham, Norwich, Norfolk, NR9 — £1,425,000 • 5 bed • 3 bath • 9670 ft²
5 bedroom house for sale in The Street, Hardwick, Norwich, NR15 — £650,000 • 5 bed • 3 bath • 4596 ft²
4 bedroom detached house for sale in Fersfield Road, Kenninghall, NR16 — £825,000 • 4 bed • 2 bath • 2336 ft²
4 bedroom detached house for sale in Low Road, Forncett St. Peter, Norwich, NR16 — £650,000 • 4 bed • 3 bath • 1810 ft²
5 bedroom detached house for sale in Pear Tree Farm, Alburgh Road, Hempnall, Norfolk, NR15 — £1,750,000 • 5 bed • 5 bath • 4000 ft²






































































































































































































