Affordable two-bedroom home with parking and extension potential for first-time buyers.
Vacant with immediate possession and no onward chain
Freehold tenure with council tax band C (affordable)
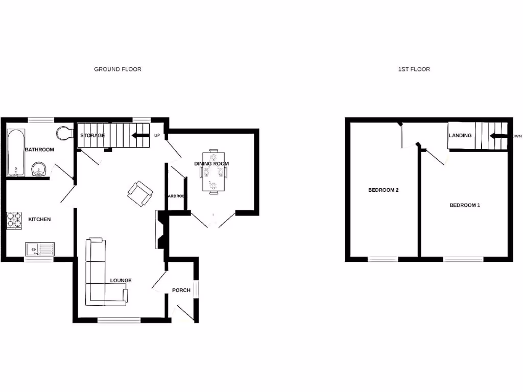
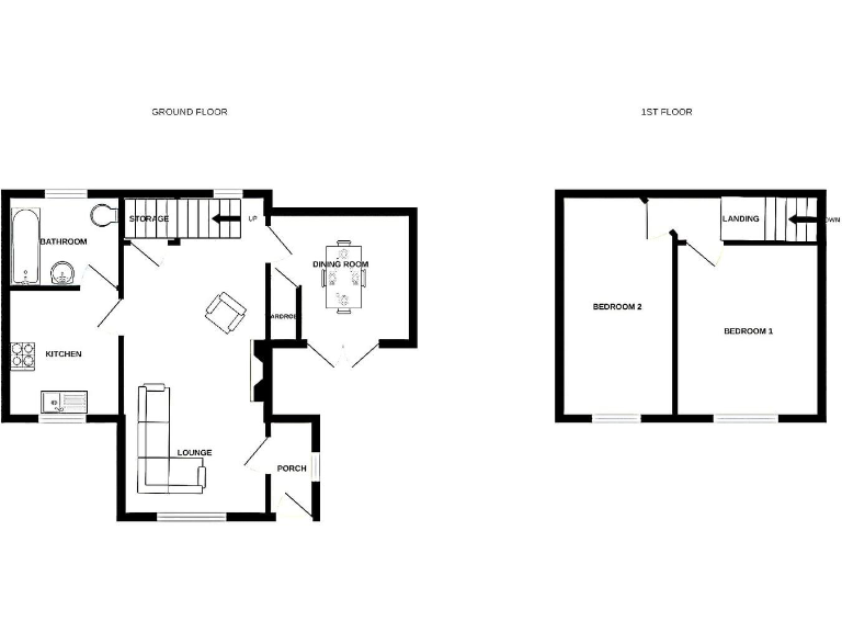
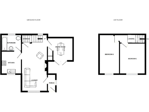
Two double bedrooms upstairs, open-plan living/dining layout
Double glazing installed; gas central heating and radiators
Off-street parking via shared driveway, small forecourt/parking area
Private rear courtyard/paved patio; small garden amenity
Planning permission recorded (two-storey side extension) — check status
Very slow broadband; likely needs cosmetic updating
This vacant, chain-free semi-detached house on Town Lane offers an affordable entry into Much Hoole with immediate possession available. The house benefits from double glazing, gas central heating and off-street parking via a shared drive — solid, practical basics for everyday living. The layout provides an open-plan living/dining area, fitted kitchen, family bathroom and two double bedrooms upstairs.
Outside there is a private rear courtyard/paved patio and a small forecourt/parking area. The plot is modest, so outdoor space is low-maintenance rather than expansive. An existing two-storey side extension planning approval (submitted 1986, decision recorded 22/10/1986) indicates potential to increase footprint subject to further enquiries and current approvals.
The property is best suited to first-time buyers or investors seeking a modest, characterful home close to village amenities, good schools and straightforward road and rail links. Expect some cosmetic updating to modernise fixtures and finishes; broadband speeds are very slow, which may matter for home working. Overall, it’s a practical, low-entry home in a quiet, prosperous rural setting with clear scope for improvement and personalisation.
3 bedroom semi-detached house for sale in Moss House Lane, Much Hoole, Preston, PR4 — £199,950 • 3 bed • 1 bath • 964 ft²
3 bedroom semi-detached house for sale in Windgate, Much Hoole, PR4 — £200,000 • 3 bed • 1 bath • 832 ft²
4 bedroom detached house for sale in Moss House Lane, Much Hoole, PR4 — £300,000 • 4 bed • 2 bath • 897 ft²
4 bedroom detached house for sale in Middle Hey, Much Hoole, Preston, Lancashire, PR4 — £345,000 • 4 bed • 2 bath • 1630 ft²
4 bedroom detached house for sale in Liverpool Old Road, Much Hoole, Preston, PR4 4QA, PR4 — £465,000 • 4 bed • 3 bath • 2027 ft²
4 bedroom detached house for sale in Station Road, Little Hoole, PR4 — £625,000 • 4 bed • 2 bath • 1856 ft²














































