**Standout Features:**
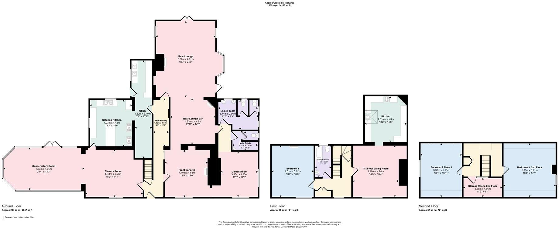
- Expansive detached former public house spanning **4200 sq ft** over three storeys
- **Large commercial kitchen** available for negotiation
- **Three bedrooms and one bathroom**, with separate accommodation potential
- **Former stables** with lapsed planning permission for a cottage and shop (could be reinstated STPP)
- Set on a generous **0.32-acre plot** with commanding countryside views
- Located in **Wall-under-Heywood**, a peaceful village close to Church Stretton, Ludlow, and Shrewsbury
- Excellent transport links from nearby Church Stretton train station
- **Low crime rate** and excellent mobile signal
**Summary:**
Introducing Devonshire House—a remarkable, expansive property brimming with potential in the scenic village of Wall-under-Heywood. This substantial detached building formerly served as a public house and now presents an array of exciting opportunities for both residential and commercial endeavors. Spanning three storeys, the interior boasts multiple reception rooms and a generous commercial kitchen, perfect for reimagining as a grand family home, boutique guest house, or even unique event space.
Set on a **0.32-acre** plot, the property offers breathtaking countryside views and ample space for future landscaping or development (subject to planning permission). The former stables feature lapsed planning consent for additional living or commercial spaces, enhancing the investment potential. With nearby amenities, excellent transport links, and a low crime rate, this property is ideal for families, ambitious homeowners, or visionary developers looking to create something truly special. Don’t miss out on a rare opportunity to make your mark on a landmark village building with historical charm. Act now to explore the possibilities!
5 bedroom detached house for sale in Dorrington, Shrewsbury, SY5 — £625,000 • 5 bed • 2 bath • 2132 ft²
5 bedroom character property for sale in Mytton Lane, Shawbury, Shrewsbury, SY4 — £550,000 • 5 bed • 2 bath • 1697 ft²
4 bedroom detached house for sale in Orchard Lane, Hanwood, Shrewsbury, SY5 — £845,000 • 4 bed • 3 bath • 3000 ft²
5 bedroom detached house for sale in 84 Sandford Avenue, Church Stretton, SY6 7AA, SY6 — £775,000 • 5 bed • 2 bath • 3507 ft²
4 bedroom detached house for sale in 1 Limes Paddock, Main Road, Dorrington, Shrewsbury SY5 7JW, SY5 — £595,000 • 4 bed • 2 bath • 2489 ft²
4 bedroom detached house for sale in Lyth Hill Road, Bayston Hill, Shrewsbury, SY3 — £1,450,000 • 4 bed • 5 bath • 4088 ft²






































































































































































































