Freehold building plot with outline permission—design a bespoke home in mature Scartho setting.
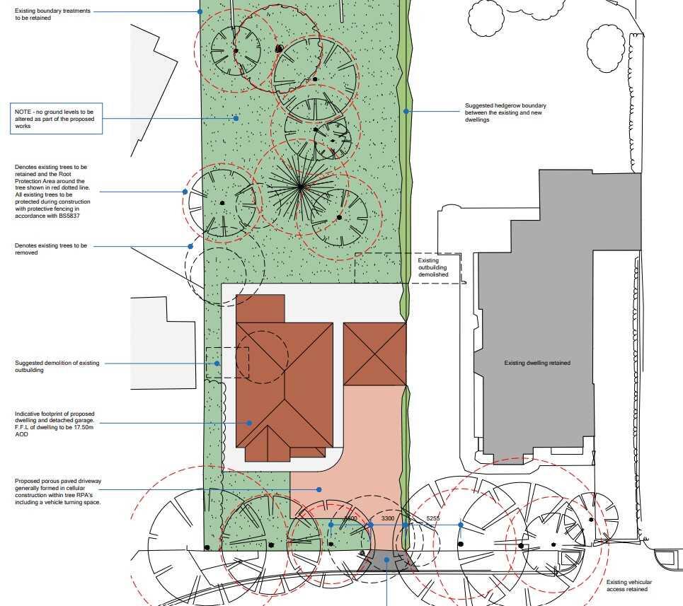
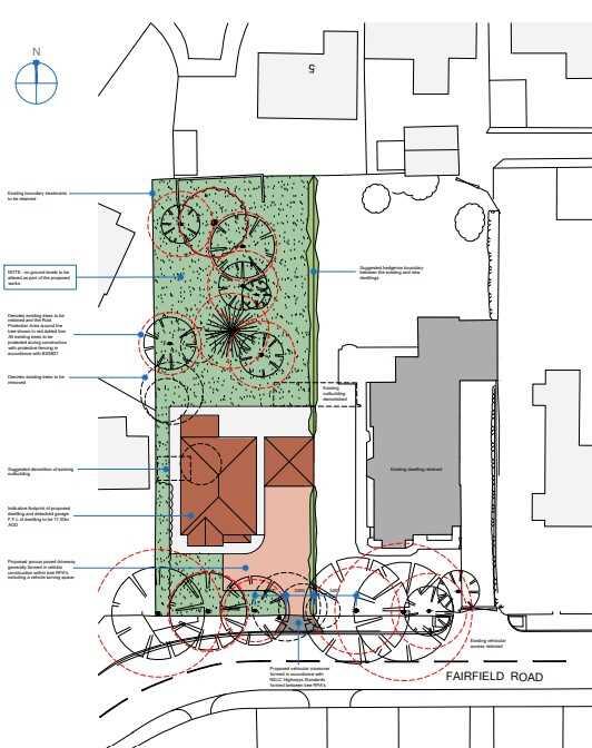
Outline planning permission for one dwelling and detached garage (ref DM/0844/24/OUT)
Rectangular level plot approx. 19.38m x 53.58m; fronts Fairfield Road
Buyer responsible for removing outbuilding and fencing new boundary
Former swimming pool filled in — purchaser must check ground suitability
Services believed available in highway; connection costs payable by buyer
Reserved matters to be applied for within three years; vendor won’t accept conditional offers
Mature trees provide privacy; quiet residential setting but above-average crime
Located near Scartho village, regular buses and Good-rated local schools
An unexpectedly available rectangular freehold plot on Fairfield Road with Outline Planning Permission (ref DM/0844/24/OUT) to build one dwelling and a detached garage. The plot fronts the road, measures approximately 19.38m x 53.58m, and sits in a mature residential setting with established trees providing privacy. For a first-time buyer willing to manage a new-build project, this is a rare chance to create a bespoke home. 
The permission was granted 23 December 2024 and includes vehicle crossover details; reserved matters must be submitted within three years. Services (gas, water, electricity, drainage) are believed to be available in the highway, but connection costs and any site investigations are the buyer’s responsibility. The outline consent places no limits on storeys or style, so the new owner can design a home to suit their needs. 
Important practical points: an outbuilding crosses into the neighbouring garden and must be removed by the purchaser, and a former filled-in swimming pool lies where the driveway/garage is proposed — buyers should assess ground suitability before building. The vendor will not accept offers conditional on alternative permissions or dependent on reserved matters being decided. 
Location-wise, the plot is near Scartho village amenities, regular bus routes and several local primary and secondary schools rated Good. The area is in a deprived outer-city classification with above-average crime rates, so prospective buyers should consider local context and security when planning their new home.
 Land for sale in Humberston Avenue, Humberston, Grimsby, DN36 — £140,000 • 1 bed • 1 bath
 Land for sale in Humberston Avenue, Humberston, Grimsby, DN36 — £140,000 • 1 bed • 1 bath Plot for sale in Development Opportunity, Rear Of Grove Farm House, Station Road, New Waltham, Grimsby, DN36 — £399,999 • 1 bed • 1 bath
 Plot for sale in Development Opportunity, Rear Of Grove Farm House, Station Road, New Waltham, Grimsby, DN36 — £399,999 • 1 bed • 1 bath Land for sale in Humberston Avenue, Humberston, Grimsby, DN36 — £140,000 • 1 bed • 1 bath
 Land for sale in Humberston Avenue, Humberston, Grimsby, DN36 — £140,000 • 1 bed • 1 bath Land for sale in Great Coates Road, Healing, Grimsby, DN41 — £450,000 • 1 bed • 1 bath • 12403 ft²
 Land for sale in Great Coates Road, Healing, Grimsby, DN41 — £450,000 • 1 bed • 1 bath • 12403 ft² Land for sale in Humberston Avenue, Humberston, Grimsby, DN36 — £250,000 • 1 bed • 1 bath
 Land for sale in Humberston Avenue, Humberston, Grimsby, DN36 — £250,000 • 1 bed • 1 bath Plot for sale in Low Road, Hatcliffe, Grimsby, N. E. Lincolnshire, DN37 — £295,000 • 3 bed • 3 bath
 Plot for sale in Low Road, Hatcliffe, Grimsby, N. E. Lincolnshire, DN37 — £295,000 • 3 bed • 3 bath






































