Ideal first-time purchase with a generous garden and easy commuter links.
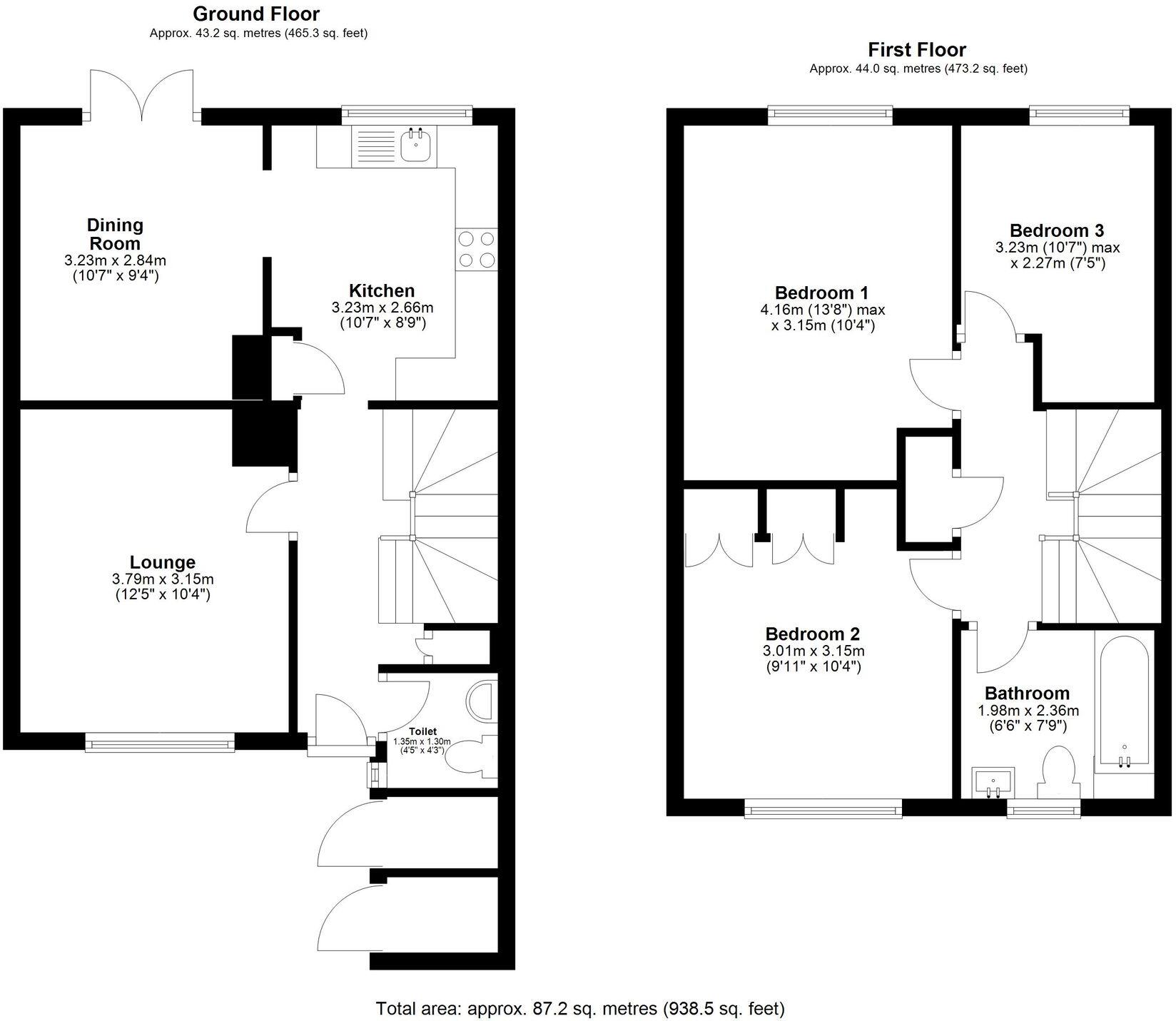
- Three bedrooms with family bathroom
- Separate dining room with French doors to garden
- Modern fitted kitchen with integrated appliances
- Enclosed rear garden; small plot with gated rear access
- On-street parking only; no private driveway
- Potential to extend, subject to planning permission (STPP)
- Double glazing and mains gas central heating
- Fast broadband; no flood risk
This three-bedroom end-terrace on Burns Road is presented as a ready-to-move-in purchase ideal for first-time buyers or buy-to-let investors. The house offers a generous lounge, separate dining area with French doors, a modern fitted kitchen with integrated appliances, and a fully enclosed rear garden that suits outdoor living and entertaining.
Upstairs there are three well-proportioned bedrooms and a family bathroom. The property benefits from double glazing, mains gas central heating, fast broadband and no flood risk. The plot is small but practical, with gated rear access; on-street parking is available directly outside and opposite the house.
There is scope to extend subject to planning permission (STPP) for purchasers seeking extra space or added value. The home was constructed in the late 1970s–early 1980s and is presented in good decorative order, although buyers should note the modest plot size and that any extension would require a planning application.
Situated within walking distance of local shops, good primary and secondary schools, and regular rail services to Cambridge and London, the location will particularly appeal to commuters and those seeking established town amenities with nearby green spaces.
3 bedroom terraced house for sale in Burns Road, Royston, SG8 — £340,000 • 3 bed • 2 bath • 1054 ft²
3 bedroom semi-detached house for sale in Garden Walk, Royston, SG8 — £450,000 • 3 bed • 1 bath • 990 ft²
3 bedroom semi-detached house for sale in Newmarket Road, Royston, SG8 — £415,000 • 3 bed • 1 bath • 920 ft²
3 bedroom terraced house for sale in Kingston Vale, Royston, SG8 — £365,000 • 3 bed • 1 bath • 814 ft²
3 bedroom semi-detached house for sale in Field Crescent, Royston, SG8 — £375,000 • 3 bed • 1 bath • 851 ft²
3 bedroom end of terrace house for sale in Shelley Close, Royston, SG8 — £325,000 • 3 bed • 1 bath • 732 ft²










































































