**Standout Features:**
- No onward chain
- Integral garage with conversion potential (subject to permissions)
- Spacious, light-filled garden room
- Two double bedrooms with built-in wardrobes
- Modern fittings and a recent boiler (2023)
- Low maintenance gardens, ideal for those seeking convenience
- Central location near town center and train station
- Security and low crime rate in the area
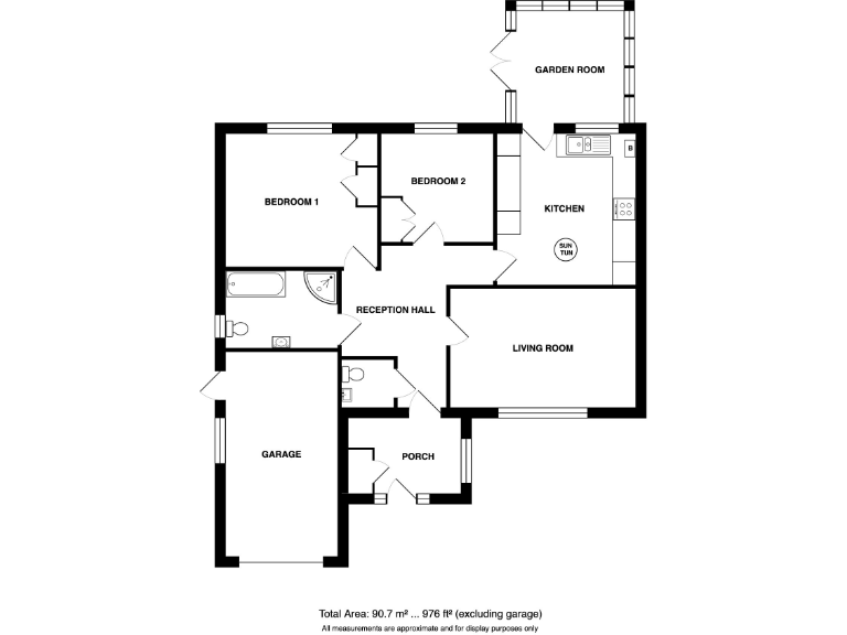
Positioned within a select 2009 development in picturesque Sheringham, this beautifully presented detached bungalow embodies modern living with the tranquility of coastal life. Boasting a spacious layout, the home features a stylish kitchen/dining area leading to a versatile garden room—perfect for year-round entertaining. Two generous double bedrooms come equipped with built-in wardrobes, while a contemporary bathroom and cloakroom enhance convenience.
The integral garage offers exciting conversion potential for additional living space, subject to necessary permissions, while the lovingly landscaped gardens require little upkeep, leaving more time for leisure. Nestled within an affluent community, the property is just a short stroll from the vibrant town center, renowned for its independent shops, cafes, and easy access to beachside promenades. With fast broadband and excellent transport links, it offers the perfect blend of comfort and convenience, making it an ideal choice for families, retirees, or savvy investors looking for a low-maintenance lifestyle. Don't miss your chance to secure this exceptional home—schedule a viewing today!
2 bedroom detached bungalow for sale in Sheringham, NR26 — £350,000 • 2 bed • 1 bath • 1030 ft²
2 bedroom detached bungalow for sale in Sheringham, NR26 — £320,000 • 2 bed • 1 bath • 1090 ft²
2 bedroom detached bungalow for sale in Sheringham, NR26 — £385,000 • 2 bed • 1 bath • 779 ft²
3 bedroom detached house for sale in Sheringham, NR26 — £475,000 • 3 bed • 2 bath • 992 ft²
3 bedroom detached bungalow for sale in Heath Road, Sheringham, NR26 — £450,000 • 3 bed • 1 bath • 1353 ft²
4 bedroom detached house for sale in Sheringham, NR26 — £525,000 • 4 bed • 3 bath • 1867 ft²






























































