Well-located first-floor flat with parking and excellent local schools.
River-facing open-plan reception and kitchen
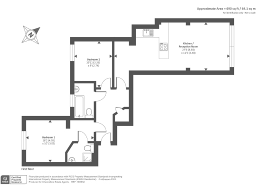
Set on the first floor of a modern, purpose-built block, this two-bedroom apartment offers river views and secure underground parking — ideal for commuters and young families seeking convenience and calm. The open-plan reception and kitchen face the river, bringing natural light into comfortable living space across approximately 850 sq ft. Both bedrooms are doubles, with the principal bedroom served by an en-suite.
Practical points appeal: a long lease (circa 166 years remaining), low service charge, lift access and chain-free sale make for an easy move or rental setup. Local schooling is strong, with several Good-rated primary and secondary options nearby, and Richmond under a mile away for extra amenities and transport links.
Buyers should note heating is electric underfloor and the property is not on a communal gas system. Broadband speeds are reported as slow — relevant if you regularly work from home. The apartment is average-sized and built between 1996–2002, so cosmetic updating may suit buyers wanting to personalise the finish.
Overall, this flat is a practical, low-maintenance riverside home for commuter families or investors seeking a well-located, long-lease apartment with parking and good local schools.
2 bedroom flat for sale in Lion Wharf Road, Old Isleworth, TW7 — £649,950 • 2 bed • 2 bath • 979 ft²
2 bedroom apartment for sale in Clevedon Road, Twickenham, TW1 — £975,000 • 2 bed • 2 bath • 1108 ft²
1 bedroom flat for sale in Swan Street, Old Isleworth, TW7 — £389,000 • 1 bed • 1 bath • 505 ft²
2 bedroom flat for sale in Lion Wharf Road, Old Isleworth, TW7 — £499,950 • 2 bed • 2 bath • 783 ft²
2 bedroom flat for sale in Twickenham Road, Teddington, TW11 — £475,000 • 2 bed • 2 bath • 1064 ft²
2 bedroom flat for sale in Worton Road, Isleworth, TW7 — £450,000 • 2 bed • 2 bath • 830 ft²


















































