Vacant Edwardian terrace with parking — ideal starter home or investor project.
Three bedrooms in an Edwardian mid-terrace
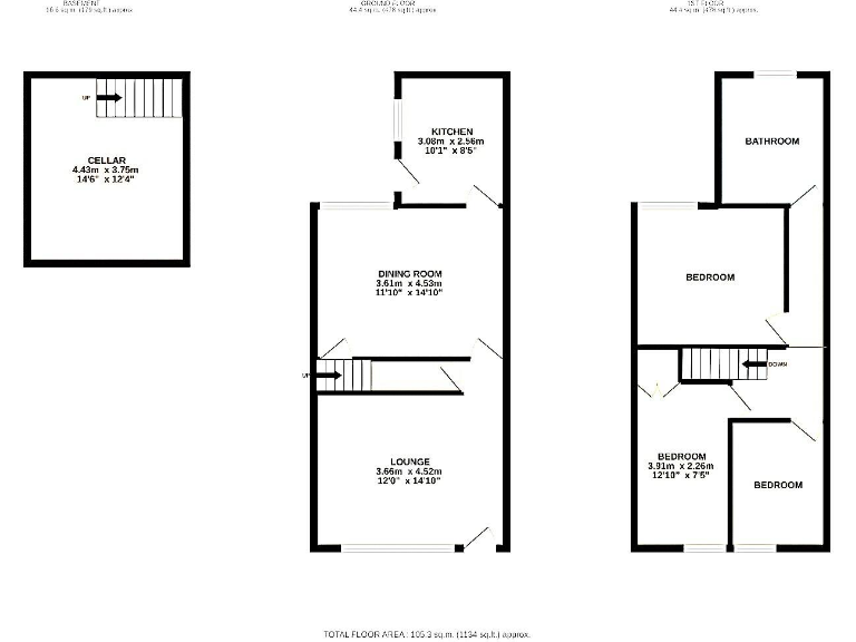
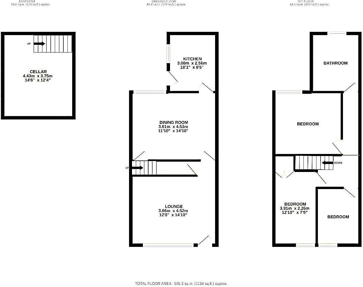
A three-bedroom Edwardian mid-terrace on Elmton Road offering vacant possession and immediate move-in potential. The layout includes a ground-floor living and dining area, kitchen with cellar access, three first-floor bedrooms and a family bathroom. Practical extras include off-street parking, a small low-maintenance rear yard with storage sheds, double glazing and gas central heating.
This property suits a first-time buyer or buy-to-let investor looking for an affordable entry into the local market. The house is freehold, around 1,134 sq ft, and sold at a price that reflects its fair condition and modest room sizes. Council tax is low (Band A), and nearby Creswell amenities and rail links make commuting straightforward.
Important matters are plainly stated: the home is in a very deprived area with higher local crime rates, and it lies near a former coalfield. The building is solid-brick with no known cavity insulation, the roof and external render show signs of age and some roof repair and general modernization are likely. Buyers should budget for updating, possible energy-efficiency improvements, and standard refurbishment works to bring the property up to modern standards.
Overall this is a practical, low-cost purchase for someone prepared to carry out limited renovation or for an investor targeting steady rental demand. The immediate possession and off-street parking are useful advantages; however, survey and local-area due diligence are recommended before committing.
3 bedroom terraced house for sale in Mansfield Road, Creswell, Worksop, S80 — £135,000 • 3 bed • 2 bath
3 bedroom semi-detached house for sale in Eyre Street, Creswell, Worksop, Notts, S80 — £200,000 • 3 bed • 1 bath • 829 ft²
3 bedroom semi-detached house for sale in Queen Street, Worksop, S80 — £109,995 • 3 bed • 1 bath • 883 ft²
3 bedroom terraced house for sale in Welbeck Street, Creswell, Worksop, S80 — £85,000 • 3 bed • 1 bath • 743 ft²
3 bedroom end of terrace house for sale in Queen Street, Creswell, Worksop, S80 — £125,000 • 3 bed • 1 bath • 758 ft²
2 bedroom terraced house for sale in Welbeck Street, Creswell, Worksop, S80 — £110,000 • 2 bed • 1 bath • 557 ft²






































